Skip to content

Content

Epping, 3 resident group home - Vacancy

Epping VIC 3076

3 bed

3 bath

2 parking
spaces

1 Vacancy

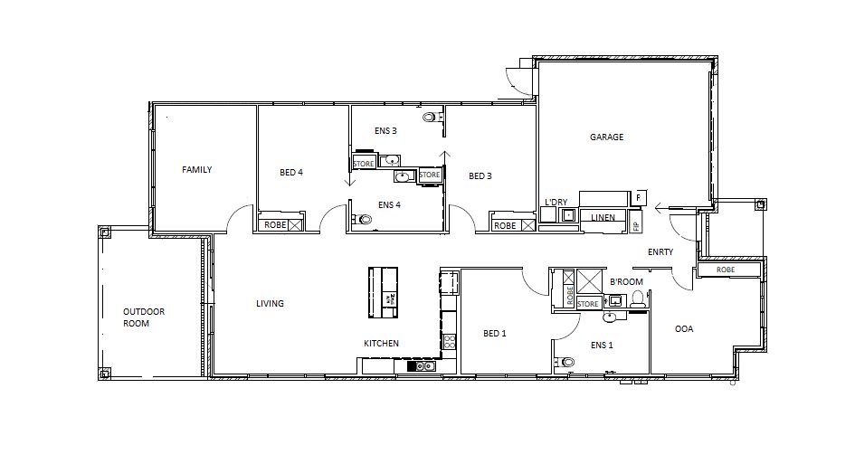
The 3 resident house is a purpose-built, luxury property in Epping.

The property is situated close to parks, 6 minute drive to the bus interchange and Aurora Village Shopping Centre.

The house comprises four bedrooms- three for residents and one for support staff. Each bedroom has an en suite. The house will be staffed 24/7 including overnight.

The home has two large open plan living areas, double garage and an accessible backyard.

The house meets the ‘High Physical Support’ design category and is assistive technology ready.

*To be eligible for Specialist Disability Accommodation, you will need to be a NDIS participant and your plan needs to include approved Specialist Disability Accommodation Funding. If you are unsure if you qualify, have a chat with your NDIS coordinator or contact intake@claro.com.au

Interested in this property?
Here are your options

Ready to apply? Share your details with the provider

Need more detail? Ask the property provider a question

Register to favourite

Property Features

The building
Single storey
Access
Wide doorframes Wide pathways
Environment
Air conditioning Heating
Shared Living
Window Built-in robe Private/ensuite bathroom Shared living space Shared kitchen
Registered SDA: Yes
SDA Category: High Physical Support
Stay Duration Permanent

Provider Details

SDA Provider: ACARES SIL Provider: Claro Aged Care Disability Services

What's nearby

Local terrain 2km to the nearest park at Gammage Park, Gammage Boulevard, Epping VIC, Australia.
Transport 2km to the nearest train station at Epping Station, Epping VIC, Australia
2km to the nearest bus stop at Gammage Bvd/Edgars Rd, Epping VIC, Australia.
Shopping 2km to the nearest shopping centre at Pacific Epping, High Street, Epping VIC, Australia.
Other 2km to the nearest hospital at The Northern Hospital, Cooper Street, Epping VIC, Australia
1km to the nearest medical practice (GP) at Epping North Medical Centre, Lyndarum Drive, Epping VIC, Australia.

Area Map

Interested in this property?
Here are your options

Ready to apply? Share your details with the provider

Need more detail? Ask the property provider a question

Register to favourite