Skip to content

Content

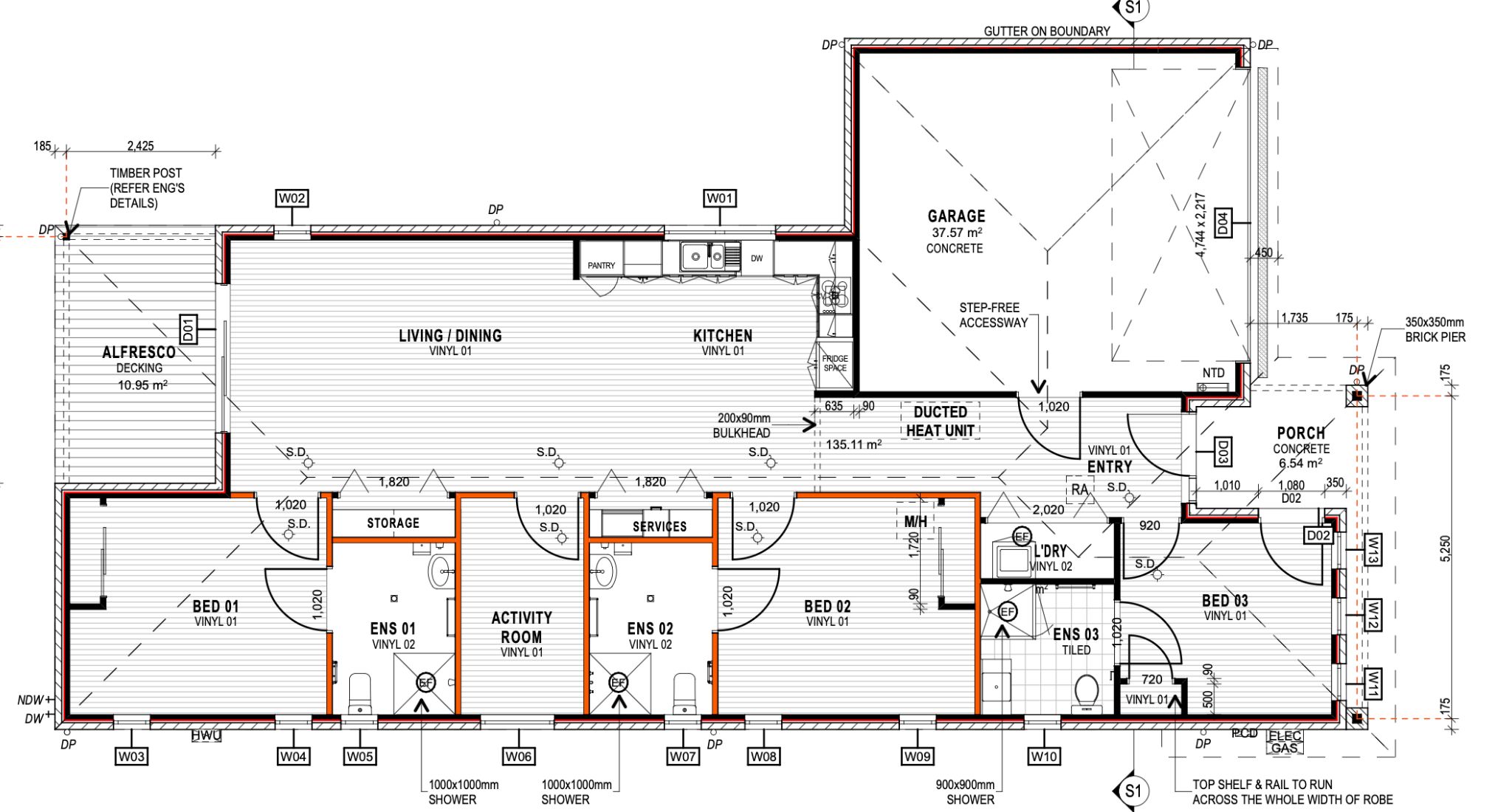
Safe, Durable & Comfortable Living in Clyde – 2+OOA Robust SDA Home

Clyde VIC 3978

3 bed

3 bath

2 parking
spaces

Located in a thriving, well-connected community, this property offers the perfect combination of peaceful residential living and convenient access to essential services, healthcare, and recreational spaces. Within a 10-minute drive, participants can access major shopping centres, diverse dining options, and quality medical facilities.

Surrounded by several playgrounds, it offers opportunities for light recreation and outdoor exercise, helping participants maintain both physical health and emotional wellbeing.

The home features two generously sized participant bedrooms, each designed for privacy, comfort, and safety, along with a dedicated Onsite Overnight Assistance (OOA) room to ensure 24/7 support is available. An open-plan kitchen, dining, and living area maximises natural light and creates a welcoming atmosphere, while the Activity Room provides a flexible space for breakout, study, or other personal uses.

The design prioritises durability, safety, and minimising reactive maintenance, featuring reinforced walls, impact-resistant finishes, and secure outdoor areas—supporting both participant independence and wellbeing.

🔑 Key Features:

• Purpose-built Robust SDA design

• 2 large participant bedrooms with built-in storage

• Dedicated OOA room for 24/7 onsite support staff

• Activity Room for flexible use (breakout, study, therapy)

• Durable, low-maintenance finishes with reinforced walls

• Open-plan living/dining/kitchen for bright, connected spaces

• Secure backyard for privacy and outdoor enjoyment

🌿 Nature & Lifestyle:

• Maple Park Playground – 5 min walk

• Eliston District Park Playground – 5 min walk

• Casey Fields Lake – 6 min drive — a vibrant sports hub with multiple athletic fields and walking tracks.

🛍 Shopping:

• Shopping on Clyde – 5 min drive

• Selandra Rise – 7 min drive

• Hunt Club Village – 12 min drive

🏥 Healthcare Nearby:

• Valetta Street Medical Centre – 4 min drive

• iLife Medical Centre – 5 min drive

• Casey Medical Centre Clyde – 5 min drive

• Clyde North Medical Centre, Clyde North Dental & 4Cyte Pathology – 5 min drive

• St John of God Berwick Hospital – 20 min drive

🚍 Public Transport:

• Bus 831 (#Hartleigh St/Waterman Dr) – 3 min walk

• Cranbourne Railway Station – 15 min drive

📩 Enquire Now!

Interested in this property?
Here are your options

Ready to apply? Share your details with the provider

Need more detail? Ask the property provider a question

Register to favourite

Property Features

The building
Single storey
Access
Wide doorframes Wide pathways
Environment
Air conditioning
Outside
Secure backyard Garden Deck/verandah Outdoor living/entertainment area
Shared Living
Storage for personal equipment Window Built-in robe Direct access to yard / courtyard / garden Private/ensuite bathroom Shared living space Shared kitchen Shared laundry
Registered SDA: Yes
SDA Category: Robust
Stay Duration Permanent
Medium term

Provider Details

SDA Provider: Ops Care Pty Ltd

What's nearby

Transport Bus 831 (#Hartleigh St/Waterman Dr)
Cranbourne Railway Station
Shopping Shopping on Clyde
Other Valetta Street Medical Centre
St John of God Berwick Hospital

Area Map

Interested in this property?
Here are your options

Ready to apply? Share your details with the provider

Need more detail? Ask the property provider a question

Register to favourite