Skip to content

Content

🏡 BRAND NEW SDA – HORSLEY (Huntley) - Purpose Built

Huntley NSW 2530

3 bed

4 bath

3 parking
spaces

🏡 👨‍🦼‍➡️SDA Housing Vacancy – Brand New, Purpose-Built Home

📌Location: Huntley - Stunning Escarpment Views

Are you supporting an NDIS participant who’s looking for a comfortable, high-quality SDA home?

Or are you a participant ready to make the move into a thoughtfully designed, purpose-built property that supports your independence?

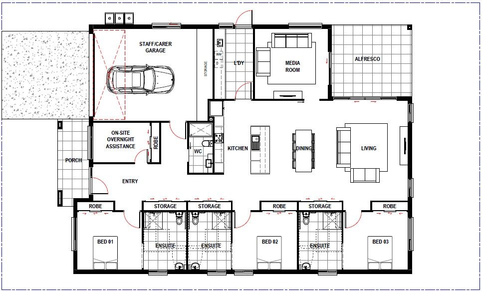
This brand new, single-storey SDA home blends comfort, style, and full accessibility – perfect for someone looking to live more independently while still enjoying the benefits of a social, community environment.

🛠️ Property Highlights:

Specialist Disability Accommodation (SDA) - Designed for High Physical Support (HPS) and Fully Accessible (FA) SDA categories:

🛏️ Spacious private bedroom with ensuite

🪑 Fully furnished common areas (bring your own bedroom setup!)

🎥 Spacious Theatre Room – A great breakaway space for Relaxation and Recreation

♿ Accessible layout with wide doorways, modern accessibility features & assistive technology -“ceiling hoist-ready”

🍽️ Open-Plan Kitchen with Modern Appliances – Fully Equipped

🌿 Quiet, covered outdoor space with beautiful views of the mountain escarpment

🧭Located in a tranquil, green neighbourhood, this home is thoughtfully designed and decorated, this home supports people with varying abilities and support needs while prioritising comfort, dignity, and choice. The layout encourages both privacy and social connection, with appropriate spaces for professional support, making it ideal for SIL participants.

Whether you're a Support Coordinator or a participant looking for the right SDA fit, we’re here to help.

✅ Why this home stands out:

° Designed & purpose-built, with NDIS participants in

mind for long-term, independent living success

° Ready for immediate placement – no wait time

° Caring support team who will be trained for your

individual care needs

This is a rare opportunity to secure a newly built, fully compliant SDA home – spaces are limited!

📞 Contact us today to discuss suitability for your participant or to arrange a private tour - Mark - 0404 209 653

Interested in this property?
Here are your options

Ready to apply? Share your details with the provider

Need more detail? Ask the property provider a question

Register to favourite

Property Features

The building
Single storey
Access
Lift access Ramp access Ceiling hoist Wide doorframes Wide pathways
Environment
Air conditioning Heating
Outside
Secure backyard Raised garden bed Garden Outdoor living/entertainment area Undercover access from parking to property
Shared Living
Storage for personal equipment Window Built-in robe Private/ensuite bathroom Private living space Shared living space Shared kitchen Shared laundry
Registered SDA: Yes
SDA Category: Improved Liveability
Fully Accessible
High Physical Support
Stay Duration Permanent
Medium term

Provider Details

SDA Provider: Enlarge Living SIL Provider: BB Disability & Mental Health Services

Application Criteria

📍 Vacant Now – Ready for Immediate Move-In 📍

🏠 Housemate Opportunity

We are currently taking expressions of interest for our beautiful, purpose-built, fully accessible SDA home.

Contact Mark directly on 0404 209 653

to discuss any potential participants

🛠️ Support & Funding Requirements:

To be eligible, participants must have:

🔹SDA Funding in one of the following NDIS categories:

High Physical Support or Fully Accessible

🔹 SIL Funding with one of the following support ratios:

1:3 or 2:3 or 1:1 also considered

💲Cost 70% of DSP & 100% RA, which covers ALL Living

Expenses - No other out-of-pocket cost.

🏡 Home Features:

🔹Spacious private bedroom

🔹 Your own personal ensuite bathroom

🔹Fully furnished shared living spaces

🔹Modern accessibility features & assistive technology -

“ceiling hoist-ready”

🔹Purpose-built to meet high support needs

🔹Peaceful, inclusive environment

🧑‍⚕️ Support Providers:

🔹SIL Provider: BB Disability & Mental Health Services

🔹Community Participation (CP): You may choose your own

CP provider or we can assist!!!

📞 Contact me directly to discuss participant suitability or to arrange a private tour:

Mark – 0404 209 653

🤞Let’s find the right fit together in this beautiful home.

What's nearby

Local terrain Beautiful view of the Illawarra Escarpment
Beautiful view of the Illawarra Escarpment
15 minutes from multiple beaches
Transport 5 minutes from Dapto Train Station
Shopping 5 minutes from Dapto Mall & 15 minutes from Wollongong Shopping precinct
15 Minutes from central Wollongong
Close distance to Dapto Mall
15 minutes from Wollongong & Shopping precincts

Area Map

Interested in this property?
Here are your options

Ready to apply? Share your details with the provider

Need more detail? Ask the property provider a question

Register to favourite