Skip to content

Content

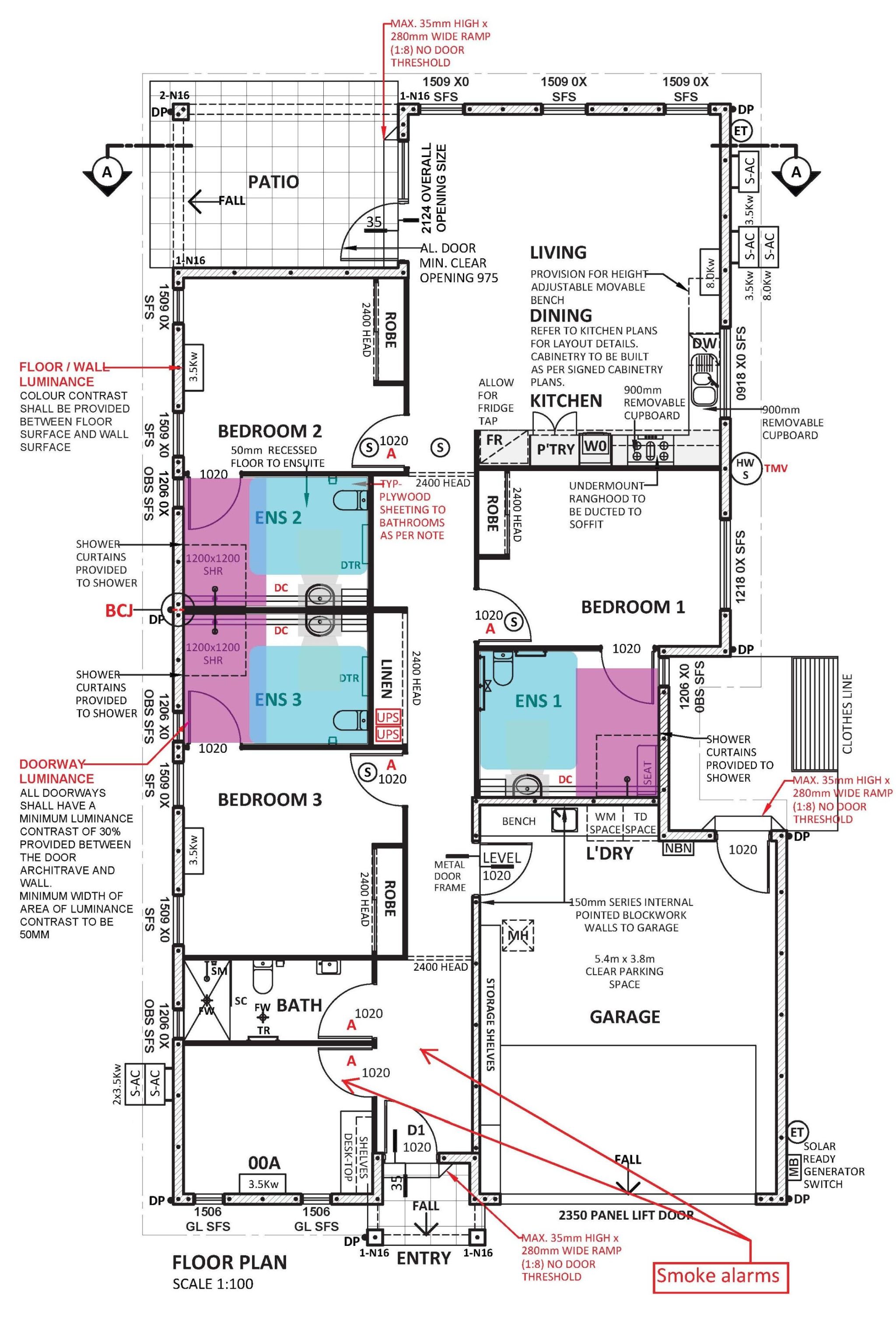
High Physical Support SDA Home for 3 Residents in Townsville’s Northern Beaches

Mount Low QLD 4818

3 bed

3 bath

2 parking
spaces

Located in the exclusive Sanctum Estate, this Specialist Disability Accommodation (SDA) home is purpose-built for three residents requiring High Physical Support (HPS). Designed for safety, accessibility, and comfort, the home features spacious bedrooms, each with its own state-of-the-art ensuite to promote independence.

A large open-plan living, kitchen, and dining area is designed for ease of movement, ensuring residents can navigate the space safely and comfortably. Thoughtful accessibility modifications provide greater autonomy in daily living.

Situated in Townsville’s growing Northern Beaches, this home offers convenient access to Townsville Hospital, James Cook University, and Lavarack Barracks via the Townsville Ring Road extension, making essential services and employment hubs more accessible.

This modern and fully accessible home provides a comfortable and independent lifestyle in a thriving community.

Interested in this property?
Here are your options

Ready to apply? Share your details with the provider

Need more detail? Ask the property provider a question

Register to favourite

Property Features

The building
Single storey
Access
Wide doorframes
Environment
Air conditioning
Outside
Secure backyard Garden Outdoor living/entertainment area Undercover access from parking to property
Shared Living
Storage for personal equipment Window Built-in robe Private/ensuite bathroom Shared living space Shared kitchen Shared laundry Pet friendly
Registered SDA: Yes
SDA Category: Improved Liveability
Fully Accessible
High Physical Support
Stay Duration Permanent

Provider Details

SDA Provider: Everhomes Pty Ltd

Area Map

Interested in this property?
Here are your options

Ready to apply? Share your details with the provider

Need more detail? Ask the property provider a question

Register to favourite