Skip to content

Content

2 SDA (Robust or Improved Liveability) + OOA + Media Room, Available Now in Blacks Beach

Blacks Beach QLD 4740

3 bed

3 bath

1 parking
space

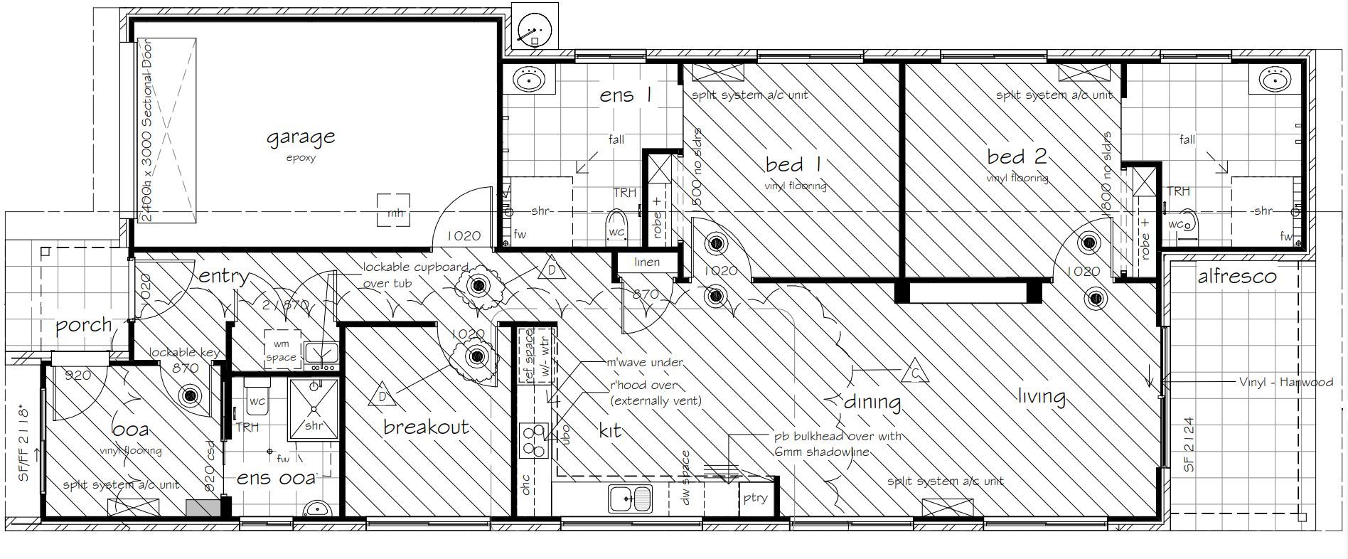
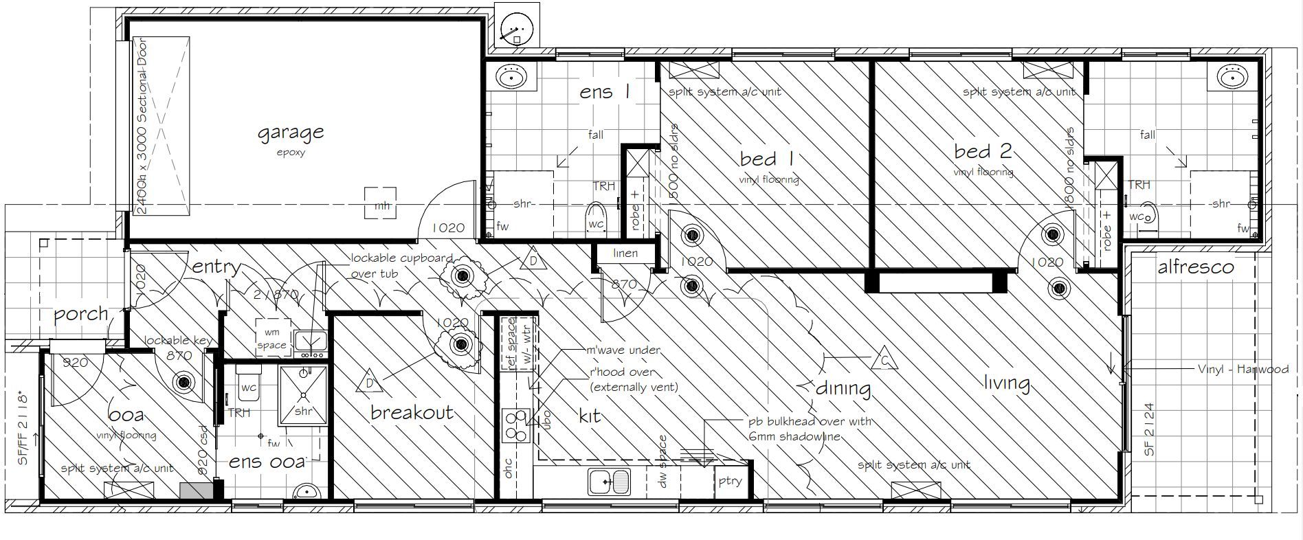
This spacious 2 SDA Room (Robust or Improved Liveability) + OOA + Media room home, is located in Blacks Beach, QLD, and is designed for up to 2 HPS participants, with a OOA bedroom for onsite overnight support.

It can be fully furnished or you can bring your own furnishings.

This house is fully NDIS certified and compliant to meet the most up to date SDA guidelines.

This home has a modern interior, with the following features:

* 2 large bedrooms, each with an ensuite and SDA accessibility options, split system air conditioning and capacity for ceiling hoists if required.

* OOA bedroom for onsite overnight support

* Separate Media room

* TV in each room

* Modern kitchen with: a height-adjustable bench top, dish drawer dishwasher, Caesarstone benchtops, strip lighting to the overhead cupboards bright lighting, filled with natural light

* Large living room

* Spacious Dining room

* Separate laundry, with washer and dryer provided.

Contact Kylie Peirce on 0493 028 591 / k.peirce@horizonsdacare.com.au. for more information.

*All imagery is for illustrative purposes only and represents finishes similar to this property.

Interested in this property?
Here are your options

Ready to apply? Share your details with the provider

Need more detail? Ask the property provider a question

Register to favourite

Property Features

The building
Single storey
Access
Ceiling hoist Wide doorframes
Environment
Air conditioning
Outside
Secure backyard Outdoor living/entertainment area Undercover access from parking to property
Shared Living
Window Built-in robe Private/ensuite bathroom Shared living space Shared kitchen Shared laundry Pet friendly
Registered SDA: Yes
SDA Category: Improved Liveability
Fully Accessible
High Physical Support
Stay Duration Permanent
Medium term
Short term

Area Map

Interested in this property?
Here are your options

Ready to apply? Share your details with the provider

Need more detail? Ask the property provider a question

Register to favourite