Skip to content

Content

Tranquil SDA Homes in Wollert – Spacious, Accessible Living with 24/7 Support

Wollert VIC 3750

4 bed

3 bath

2 parking
spaces

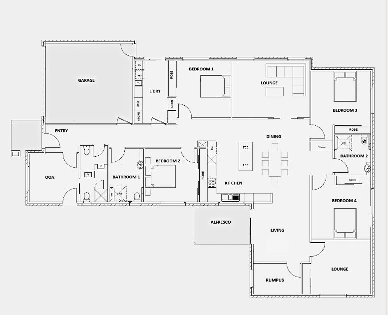
Enjoy peaceful and modern living in this beautifully designed Specialist Disability Accommodation in Wollert. Built to the High Physical Support SDA Design Standard, this development offers residents the perfect balance of comfort, independence, and community within a calm suburban setting.

Each home features three spacious bedrooms, each with a private accessible ensuite, plus a dedicated Onsite Overnight Assistance (OOA) room providing 24/7 support when needed. Wide hallways, step-free access, and wheelchair-friendly layouts make movement effortless, while large windows fill the interiors with natural light to create a warm and welcoming atmosphere.

Open-plan living and dining areas connect seamlessly to a modern kitchen equipped with accessible fittings and appliances, supporting everyday independence. Ceiling hoist provisions, emergency power backup, and assistive-technology readiness provide an added layer of safety and flexibility for residents’ needs.

Located in a quiet residential pocket of Wollert, this SDA housing is close to local parks, shops, medical services, and transport links. The area’s peaceful charm, combined with modern accessibility features, makes it an ideal home for those seeking comfort and stability within a supportive community.

Claro — awarded the Most Outstanding Disability Support Provider at the 2025 Enablement Awards — has partnered with SDA provider Acares as the onsite care partner for this SDA housing in Wollert. Claro is a registered NDIS provider offering Supported Independent Living (SIL) and Community Participation (CP) supports, helping residents live confidently and achieve their personal goals.

To be eligible for Specialist Disability Accommodation, you’ll need to be a NDIS participant and have approved SDA funding in your plan. If you’re unsure, speak with your NDIS coordinator or contact Claro via intake@claro.com.au or the form on this page.

Interested in this property?
Here are your options

Ready to apply? Share your details with the provider

Need more detail? Ask the property provider a question

Register to favourite

Property Features

The building
Single storey
Access
Wide doorframes Wide pathways
Environment
Air conditioning Heating
Outside
Secure backyard
Shared Living
Window Built-in robe Shared bathroom Shared living space Shared kitchen Shared laundry
Registered SDA: No
Stay Duration Permanent

Provider Details

What's nearby

Local terrain 1km to the nearest park, Fulham park
Transport 5km to the nearest train station, Epping
791m to the nearest bus stop, Highpark Drive
Shopping 2km to the nearest shopping centre, Aurora Village
Other 5km to the nearest Hospital, The Northern Hospital
2km to the nearest medical centre, Aurora Village

Area Map

Interested in this property?
Here are your options

Ready to apply? Share your details with the provider

Need more detail? Ask the property provider a question

Register to favourite