Skip to content

Content

Flexible SDA funding accepted for Robust Home in Brassall QLD

Brassall QLD 4305

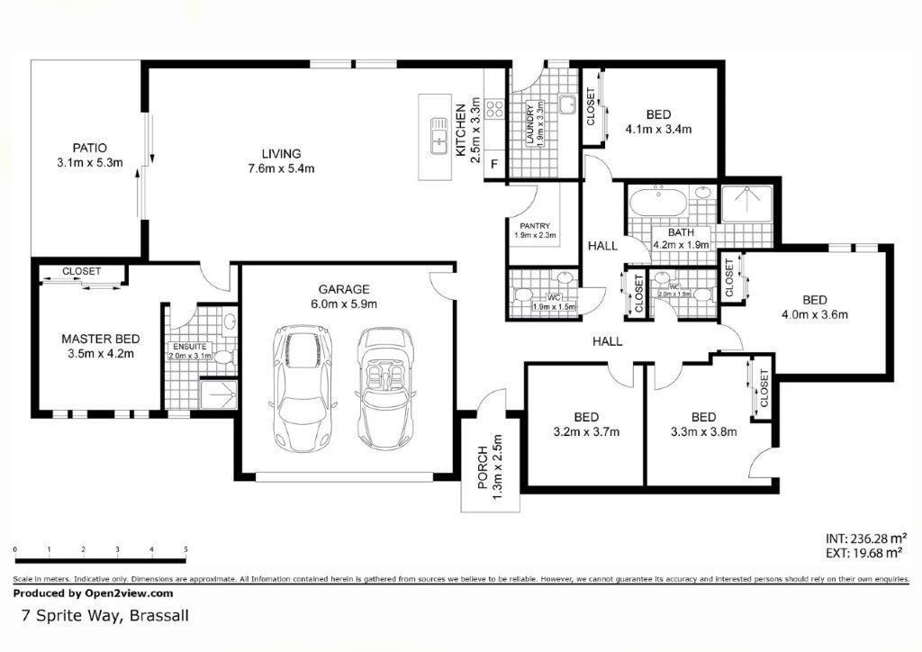
4 bed

3 bath

2 parking
spaces

Welcome to your Dream Home at Sprite Way, Brassall QLD!

This ROBUST SDA property is a haven of comfort and style, offering a lifestyle of convenience and relaxation. The property boasts a large living room, providing ample space for relaxation and entertainment. The walk-in pantry is a chef’s delight, offering plenty of storage for all your culinary needs.

The large yard surrounding the house is perfect for outdoor activities or simply enjoying the beautiful Queensland weather. It provides a great space for gardening, barbecues, or just lounging around on a sunny day.

One of the standout features of this property is the good separation of resident privacy. This thoughtful design ensures that each resident can enjoy their own personal space while still being part of a vibrant community. The property also offers a breakout room for residents to engage in sensory activities.

The landlord is accepting flexible SDA funding for this property. This includes permutations such as 1x Improved Livability + 1x Robust, making it a versatile option for a range of residents.

Don’t miss out on this opportunity to live in a home that is not only robust and functional, but also warm and inviting. Contact us today to learn more about this exceptional property!

Interested in this property?
Here are your options

Ready to apply? Share your details with the provider

Need more detail? Ask the property provider a question

Register to favourite

Property Features

The building
Single storey
Environment
Air conditioning Heating
Outside
Secure backyard Garden Deck/verandah Undercover access from parking to property
Shared Living
Storage for personal equipment Window Built-in robe Private/ensuite bathroom Shared living space Shared kitchen Shared laundry
Registered SDA: Yes
SDA Category: Robust
Stay Duration Permanent

Provider Details

SDA Provider: Home in Place

Area Map

Interested in this property?
Here are your options

Ready to apply? Share your details with the provider

Need more detail? Ask the property provider a question

Register to favourite