Skip to content

Content

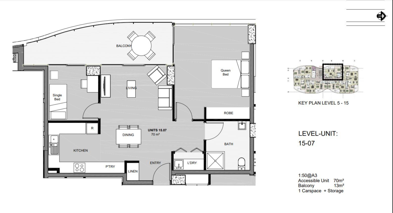
SDA Unit - Signature Building,Wollongong CBD

Wollongong NSW 2500

1 bed

1 bath

4 parking
spaces

If you are looking for a beautiful, modern, unit with a spacious bedroom, modified bathroom & good-sized

dining/entertainment space. 5-minute walk to the center of Wollongong CBD then look no further!!!

You will have access to cafe's & restaurants.

The site is ready to move in and is fully furnished - all you need to do is set up your bedroom, comes with smart-assist technology, a heated swimming pool and big outdoor common entertaining area.

This vacancy for NDIS SDA funding

● High Physical Support, Fully Accessible or Improved Liveability

● Funding -2 bed 1 resident

Interested in this property?
Here are your options

Ready to apply? Share your details with the provider

Need more detail? Ask the property provider a question

Register to favourite

Property Features

The building
Single storey
Access
Lift access Wide doorframes
Environment
Air conditioning Heating
Outside
Garden Deck/verandah Outdoor living/entertainment area Pool Undercover access from parking to property
Shared Living
Window Built-in robe Private/ensuite bathroom Private living space Private kitchen Private laundry
Registered SDA: Yes
SDA Category: Improved Liveability
Fully Accessible
High Physical Support
Stay Duration Permanent
Medium term

Provider Details

Application Criteria

To book an inspection, please contact Jinu Mathew via phone 0402 320 123 or jinu.mathew@avemaria.au

What's nearby

Other Cafe's & Restaurants

Area Map

Interested in this property?
Here are your options

Ready to apply? Share your details with the provider

Need more detail? Ask the property provider a question

Register to favourite