Skip to content

Content

Luxurious High-Support SDA Home in Aberfeldy, Cranbourne South

Cranbourne South VIC 3977

3 bed

3 bath

2 parking
spaces

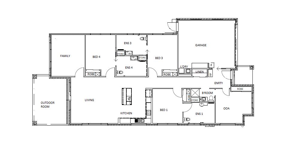
Welcome to a premium Specialist Disability Accommodation (SDA) shared home located in the heart of Aberfeldy, Cranbourne South. This purpose-built residence caters to High Physical Support and Fully Accessible standards, offering modern design and the support you need in your everyday life.

The home accommodates three residents, each enjoying their own private bedroom and ensuite, along with a dedicated room for Overnight Onsite Assistance (OOA). Wide doorways, step-free access, and seamless indoor-outdoor flow ensure mobility is effortless throughout the property. Two expansive open-plan living and dining areas invite shared time, while the accessible backyard and double garage enhance convenience and security.

Constructed to meet rigorous SDA design standards, this property integrates assistive-technology readiness, ceiling hoist provisions, and emergency power backup systems for added peace of mind. High-quality finishes, built-in storage, and climate-controlled rooms create a comfortable and dignified environment for all residents.

Nestled in Aberfeldy within Cranbourne South’s Brompton Estate, this SDA home benefits from a quiet, residential setting while being close to essential amenities — shops, medical services, public transport, and green open spaces are all within easy reach.

Claro — awarded the Most Outstanding Disability Support Provider at the 2025 Enablement Awards — has partnered with SDA provider Acares as the onsite care partner. Claro is a registered NDIS provider offering Supported Independent Living (SIL) and Community Participation (CP) supports, helping residents live confidently, safely, and on their own terms.

To be eligible for Specialist Disability Accommodation, you’ll need to be an NDIS participant and have approved SDA funding in your plan. If you’re unsure, speak with your NDIS coordinator or contact Claro via intake@claro.com.au or the form on this page.

Interested in this property?
Here are your options

Ready to apply? Share your details with the provider

Need more detail? Ask the property provider a question

Register to favourite

Property Features

The building
Single storey
Access
Wide doorframes Wide pathways
Environment
Air conditioning Heating
Outside
Secure backyard Garden Outdoor living/entertainment area
Shared Living
Storage for personal equipment Window Built-in robe Direct access to yard / courtyard / garden Private/ensuite bathroom Shared living space Shared kitchen Shared laundry
Registered SDA: No
Stay Duration Permanent

Provider Details

What's nearby

Transport Close to Cranbourne Train Station

Area Map

Interested in this property?
Here are your options

Ready to apply? Share your details with the provider

Need more detail? Ask the property provider a question

Register to favourite