Skip to content

Content

Brand New Fully Accessible & High Physical Support Units!

Redan VIC 3350

10 bed

10 bath

10 parking
spaces

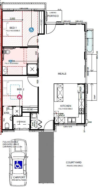
All units are being carefully constructed to align with the NDIS Design Standards and will be enrolled as Fully Accessible with provisions for High physical Support. These self-contained units will include 2 bedrooms with private ensuite’s (one fully accessible), Open plan kitchen and living area, private courtyards and dedicated parking area for each unit. Only a short walk away from Maxifoods and the Route 24 Bus Stop on our door stop.

These units will have the following housing options available:

Villa/Duplex, High Physical Support with OOA

Villa/Duplex, High Physical Support & Improved Liveability, No OOA

Villa/Duplex, Fully Accessible with OOA

Villa/Duplex, Fully Accessible & Improved Liveability, No OOA

Interested in this property?
Here are your options

Ready to apply? Share your details with the provider

Need more detail? Ask the property provider a question

Register to favourite

Property Features

The building
Single storey
Access
Wide doorframes Wide pathways
Outside
Secure backyard Garden Undercover access from parking to property
Registered SDA: Yes
SDA Category: Fully Accessible
Stay Duration Permanent

Provider Details

What's nearby

Shopping Midvale Shopping Centre

Area Map

Interested in this property?
Here are your options

Ready to apply? Share your details with the provider

Need more detail? Ask the property provider a question

Register to favourite