Skip to content

Content

SDA in Altona, Victoria

Altona VIC 3018

1 bed

1 bath

1 parking
space

SDA by Project Friday is excited to be delivering architecturally deigned, luxury apartments moments from Altona Beach.

This Specialist Disability Accommodation in Altona is set right in the heart of Pier St Altona, and only 400m from Altona Beach, our SDA complex embodies all pillars of our vision.

With a wide range of amenities, goods and services at your fingertips, Pier St offers an exciting mix of retail, entertainment, and community facilities. With a supermarket directly across the road, and an array of cafes and restaurants at your doorstep, Altona is brimming with choices and options!

Pier St Altona also provides a range of transport options, with a bus stop easily accessible at the front door and Altona Station only 150m away, with direct access to the CBD.

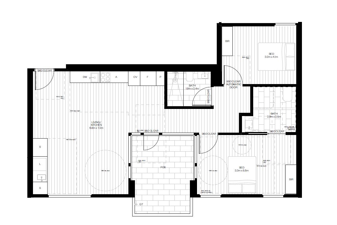
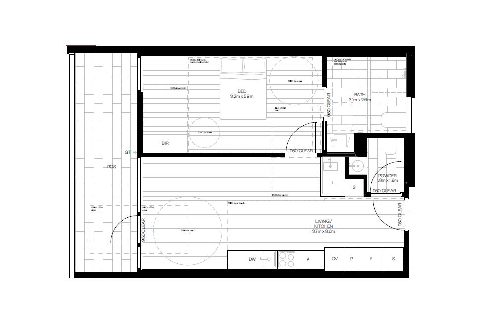
Our luxury complex offers High Physical support, Fully Accessible and Improved liveability apartments, designed to meet the individual needs of our participants. Each apartment comes full equipped with a customisable kitchen, oversized main bedroom, bathroom and laundry, in addition to a private balcony space and additional guest powder room.

*To be eligible for Specialist Disability Accommodation, you will need to be a NDIS participant and your plan needs to include approved Specialist Disability Accommodation Funding. If you are unsure if you qualify, have a chat with your NDIS coordinator or contact intake@claro.com.au

Interested in this property?
Here are your options

Ready to apply? Share your details with the provider

Need more detail? Ask the property provider a question

Register to favourite

Property Features

Access
Lift access Ceiling hoist Wide doorframes Wide pathways
Environment
Air conditioning Heating
Outside
Outdoor living/entertainment area
Shared Living
Storage for personal equipment Window Built-in robe Direct access to yard / courtyard / garden Private/ensuite bathroom Private living space Private kitchen Private laundry Pet friendly
Registered SDA: Yes
SDA Category: Improved Liveability
Fully Accessible
High Physical Support
Stay Duration Permanent

Provider Details

SDA Provider: SDA by Project friday SIL Provider: Claro Aged Care Disability Services

What's nearby

Local terrain 385m to the nearest park at J K Grant Reserve, Sugar Gum Drive, Altona VIC, Australia.
Transport 311m to the nearest train station at Altona Station, Altona VIC, Australia.
320m to the nearest bus stop at Altona Station/Railway St South, Altona VIC, Australia.
Shopping 73m to the nearest shopping centre at Civic Parade, Altona VIC, Australia.
Other 12km to the nearest hospital at Werribee Mercy Hospital, Princes Highway, Werribee VIC, Australia.
4km to the nearest medical practice (GP) at Meadows Medical Centre, Queen Street, Altona Meadows VIC, Australia.

Area Map

Interested in this property?
Here are your options

Ready to apply? Share your details with the provider

Need more detail? Ask the property provider a question

Register to favourite