Skip to content

Content

Modern High Physical Support Home with OOA Room in Dunsborough

Dunsborough WA 6281

3 bed

3 bath

2 parking
spaces

Now Available – High Physical Support SDA Home in Dunsborough! **IMAGES FOR DISPLAY PURPOSES ONLY** More Images to come.

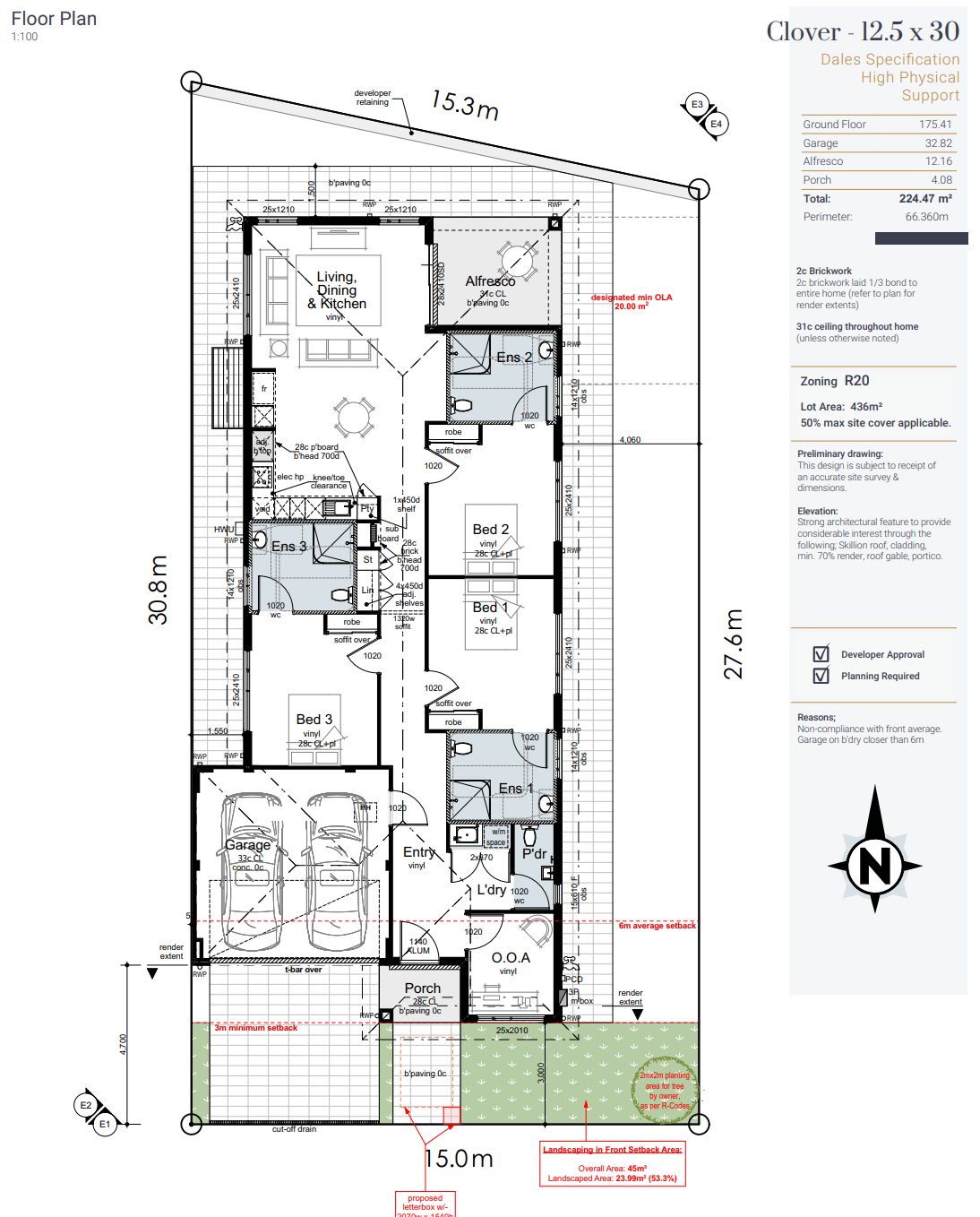
Discover premium Specialist Disability Accommodation (SDA) in the heart of Dunsborough! This brand-new High Physical Support (HPS) home is designed to provide a safe, accessible, and comfortable living environment for NDIS participants. With three spacious bedrooms, an Onsite Overnight Assistance (OOA) room, and high-end accessibility features, this home offers the perfect balance of independence and support.

Home Features:

✅ 3 SDA participant bedrooms designed for High Physical Support needs 🛏️

✅ Onsite Overnight Assistance (OOA) room for 24/7 support 👩‍⚕️

✅ Spacious open-plan living and dining area with natural light ☀️

✅ Fully accessible kitchen with modern appliances 🍽️

✅ Wide doorways, reinforced ceilings for hoists, and assistive technology provisions ♿

✅ Large, accessible bathrooms with safety-focused fixtures 🚿

✅ Secure garage with easy access to the home 🚗

✅ Private courtyard for outdoor relaxation and social activities 🌿

✅ Fully furnished for convenience and comfort 🏡

✅ Climate-controlled comfort all year round ❄️🔥

Prime Location – Everything You Need Nearby!

Dunsborough is a vibrant coastal town, offering a perfect mix of relaxation, accessibility, and essential services. Residents will enjoy:

📍 Medical Services:

Dunsborough Medical Centre – 2 min drive 🏥

Busselton Health Campus (24/7 emergency care) – 20 min drive 🚑

TerryWhite Chemmart Dunsborough – 3 min drive 💊

🛍️ Shopping & Essentials:

Dunsborough Centrepoint Shopping Centre – 2 min drive 🛒

IGA Dunsborough – 2 min drive 🥕

Dunsborough Bakery & Cafés – 3 min drive ☕

🌿 Accessible Outdoor & Community Spaces:

Dunsborough Foreshore – wheelchair-accessible pathways & scenic views 🌊

Meelup Regional Park – inclusive walking trails & picnic areas 🏞️

Lions Park – wheelchair-accessible seating & BBQ areas 🍃

🚗 Transport & Connectivity:

Easy access to public transport and major roadways 🚌

Short drive to Busselton and Margaret River for additional amenities

🔑 Experience the best of coastal living with a fully accessible SDA home in Dunsborough!

📩 Enquire today to secure your place.

Interested in this property?
Here are your options

Ready to apply? Share your details with the provider

Need more detail? Ask the property provider a question

Register to favourite

Property Features

The building
Single storey
Access
Wide doorframes Wide pathways
Environment
Air conditioning Compatible to Environmental Control Units (ECU) Heating
Outside
Secure backyard Secure frontyard Raised garden bed Garden Deck/verandah Outdoor living/entertainment area Undercover access from parking to property
Shared Living
Storage for personal equipment Window Built-in robe Private/ensuite bathroom Shared living space Shared kitchen Shared laundry
Registered SDA: Yes
SDA Category: Fully Accessible
High Physical Support
Stay Duration Permanent
Medium term

Provider Details

SDA Provider: Verity Group

Application Criteria

no specific criteria other than SDA funding required and happy to live with suitable housemates.

What's nearby

Local terrain Meelup regional park
Dunsborough Foreshore
Shopping Dunsborough Centrepoint
Other Dunsborough Medical Centre

Area Map

Interested in this property?
Here are your options

Ready to apply? Share your details with the provider

Need more detail? Ask the property provider a question

Register to favourite