Skip to content

Content

Newly Completed Accessible Home for HPS Participants in Usher

Usher WA 6230

4 bed

4 bath

2 parking
spaces

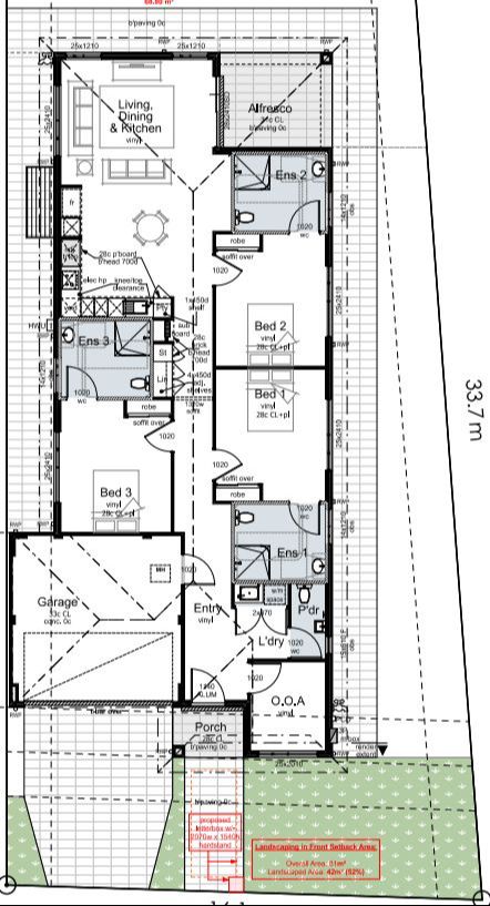
Recently completed, this modern home in Usher is thoughtfully designed with 3 participant bedrooms—each with its own private ensuite—as well as a dedicated Onsite Overnight Assistance (OOA) room for added support and peace of mind.

Conveniently located just 11 minutes from Bunbury Airport, 5 minutes from Bunbury Hospital and South Bunbury Marketplace, and only 750 metres from public transport.

This home is purpose-built for NDIS participants with High Physical Support funding and is currently partnered with SDA provider Verity Group.

Bring your own supports!

Don't have SDA funding? Get in touch - we still might be able to help you!

Interested in this property?
Here are your options

Ready to apply? Share your details with the provider

Need more detail? Ask the property provider a question

Register to favourite

Property Features

The building
Single storey
Access
Wide doorframes Wide pathways
Environment
Air conditioning Heating
Outside
Secure backyard Outdoor living/entertainment area Undercover access from parking to property
Shared Living
Storage for personal equipment Window Built-in robe Direct access to yard / courtyard / garden Private/ensuite bathroom Shared bathroom Shared living space Shared kitchen Shared laundry
Registered SDA: Yes
SDA Category: High Physical Support
Stay Duration Permanent

Provider Details

SDA Provider: Verity Group

What's nearby

Transport 750m to public transport
Shopping 5 minutes to South Bunbury Marketplace
Other 5 minutes to Bunbury Hospital

Area Map

Interested in this property?
Here are your options

Ready to apply? Share your details with the provider

Need more detail? Ask the property provider a question

Register to favourite