Skip to content

Content

2 Brand New SDA Houses in the heart of Port Macquarie

Port Macquarie NSW 2444

2 bed

2 bath

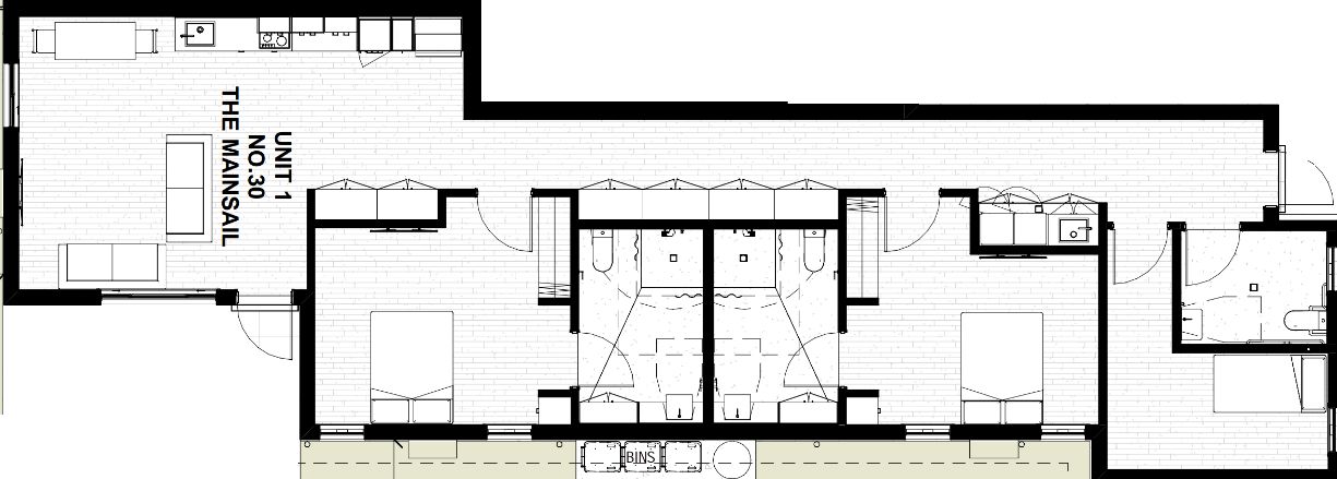
2 Brand New SDA Houses in the heart of Port Macquarie.

The houses are under construction with completion due July 2025.

Each house will include 2 SDA Bedrooms, 2 SDA Ensuite Bathrooms, OOA, OOA/Visitor Toilet, Laundry, Kitchen/Living/Dining, Onsite Parking and a large Rear Terrace.

The houses will each be suitable to accommodate for 2 SDA qualifying residents (subject to SDA funding).

Residents qualifying for High Physical Support, Fully Accessible or Improved Liveability in their plan are welcome to apply. However, we can assist you with the process of attaining SDA if you feel you may be eligible.

Fantastic central location that is close to shopping, medical services and public transport.

Please note - each house is built automation ready should this be a requirement for the resident.

Each house is also built with ceiling hoist provisions already in place should installation be a requirement for the resident.

Keep up to date with us on social media.

Facebook: (1) Facebook

Instagram: SDA (@sda_housing) • Instagram photos and videos

Youtube: Specialist Disability Accommodation Pty Ltd - YouTube

Interested in this property?
Here are your options

Ready to apply? Share your details with the provider

Need more detail? Ask the property provider a question

Register to favourite

Property Features

The building
Single storey
Access
Wide doorframes Wide pathways
Environment
Air conditioning Heating
Outside
Secure backyard Deck/verandah Outdoor living/entertainment area
Shared Living
Shared living space Shared kitchen Shared laundry
Registered SDA: Yes
SDA Category: Improved Liveability
Fully Accessible
High Physical Support
Stay Duration Permanent

Provider Details

SDA Provider: Specialist Disability Accommodation Pty. Ltd

What's nearby

Local terrain Within 950m of local Stuart Park greenspace and sporting facility
Transport Within 400m of nearest bus stop.
Shopping Within 1.7km of Settlement City Shopping Centre
Within 900m of Aldi and various other stores within close proximity.
Other Within 450m of Medical Centre.

Area Map

Interested in this property?
Here are your options

Ready to apply? Share your details with the provider

Need more detail? Ask the property provider a question

Register to favourite