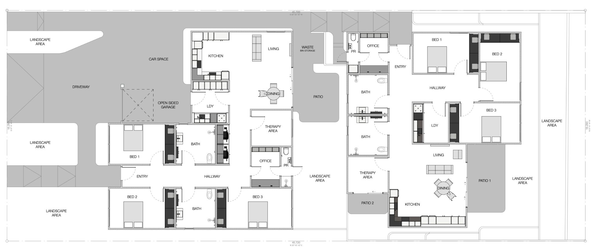
A home to enable. We’re creating a beautiful living environment matched with assistive technology capabilities and innovation in its build. Providing two separate living spaces and Support Worker accommodation and office. This home presents contemporary living at its finest.
Like nothing before, this home has been purposely designed with the residents in mind. Offering functionality, accessibility and durability, making this stylish home live up to rigorous quality and safety standards and provides an ongoing quality living space.
Located in an established community setting, this home brings hand-picked, curated interiors and colour palettes, fixtures and finishes with an emphasis on design coupled with a calm, luxury feel.
This home will serve NDIS Participants with SDA at High Physical, Robust, Improved Liveability and Fully Accessible.
Live the life you want.
Interested in this property? Here are your options
Ready to apply? Share your details with the provider
Need more detail? Ask the property provider a question
Air conditioningCompatible to Environmental Control Units (ECU)Heating
Outside
Secure backyardGardenDeck/verandahOutdoor living/entertainment area
Shared Living
Storage for personal equipmentWindowBuilt-in robeDirect access to yard / courtyard / gardenShared bathroomShared living spaceShared kitchenShared laundry
Participant must be SDA eligible and meet the following cohort:
High Physical, Robust, Improved Liveability and Fully Accessible.
What's nearby
TransportCoffs Harbour provides excellent public transport including several buses that take you up and down the coast. Bus 366 is located only a short distance away and goes from Park Beach Plaza to Coffs Harbour City Centre.
ShoppingLocated only a short distance away there are two shopping centres to choose from - Coffs Central or Park Beach Plaza. These are home to all the shopping amenities you need. Coles and Woolworths are all within a short distance of each other along with over 100 other speciality stores.
OtherThe area is well serviced with hospitals including Coffs Harbour Base Hospital located 5km away and Baringa Private Hospital located 2km away. Supported by over 50 specialist medical services within 10kms, including physiotherapy, speech pathologists and occupational therapists.
Interested in this property? Here are your options
Ready to apply? Share your details with the provider
Need more detail? Ask the property provider a question
Our match score indicates how closely 'matched' you are to this property. The longer the line; the better you are matched with the property with regards to your preferences and funding.
Our match score indicates how closely 'matched' this applicant is to your property. The longer the line; the better they are matched with regards to their preferences and funding.
1800 listed properties in Queensland.
Login to find your Nest
Reset your password
Sign up for Nest in seconds
Why are you signing up?
Register to apply for:Beautiful 3 bedroom house in Coffs Harbour, Coffs Harbour NSW 2450
When you click 'Register & Apply', your profile details will be shared with the accommodation provider. They'll assess how suited you are to the room and contact you to discuss your application.
Your application has been submitted.
The accommodation provider will be in touch to let you know the outcome of your application.