Skip to content

Content

High Physical Support, Gatton

Gatton QLD 4343

3 bed

3 bath

2 parking
spaces

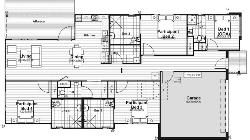
This new modern High Physical Support build comes with its own ensuite for added privacy, as well as spacious rooms for accessible living.

With an Overnight Onsite Accommodation room at the front of the house, participants can rest assured they have support available to them 24/7. Furthermore, these properties present a unique opportunity for a SIL provider to provide care across two adjacent SDA homes.

Interested in this property?
Here are your options

Ready to apply? Share your details with the provider

Need more detail? Ask the property provider a question

Register to favourite

Property Features

The building
Single storey
Access
Wide doorframes Wide pathways
Environment
Air conditioning
Outside
Garden Deck/verandah Outdoor living/entertainment area
Shared Living
Storage for personal equipment Window Built-in robe Private/ensuite bathroom Shared living space Shared kitchen
Registered SDA: Yes
SDA Category: High Physical Support
Stay Duration Permanent

Provider Details

SDA Provider: ADAPT Housing

Area Map

Interested in this property?
Here are your options

Ready to apply? Share your details with the provider

Need more detail? Ask the property provider a question

Register to favourite