Skip to content

Content

Wollert House - 3 Resident House - Vacancy

Wollert VIC 3750

3 bed

2 bath

2 parking
spaces

The property is situated close to parks, Epping train station and Aurora Village Shopping Centre.

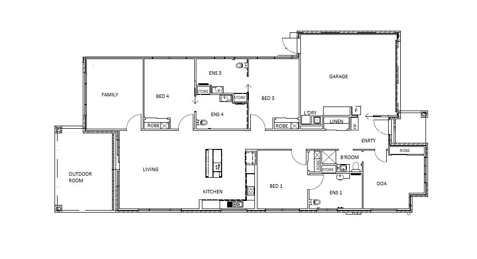
The house comprises four bedrooms- three for residents and one for support staff. Each bedroom has an ensuite. The house will be staffed 24/7 including overnight.

The home has two large open plan living areas, double garage and an accessible backyard.

The house meets the ‘High Physical Support’ design category and is assistive technology ready.

*To be eligible for Specialist Disability Accommodation, you will need to be a NDIS participant and your plan needs to include approved Specialist Disability Accommodation Funding. If you are unsure if you qualify, have a chat with your NDIS coordinator or contact intake@claro.com.au

Interested in this property?
Here are your options

Ready to apply? Share your details with the provider

Need more detail? Ask the property provider a question

Register to favourite

Property Features

The building
Single storey
Access
Wide doorframes Wide pathways
Environment
Air conditioning Heating
Outside
Secure backyard Garden
Shared Living
Window Built-in robe Private/ensuite bathroom Shared living space Shared kitchen Shared laundry
Registered SDA: No
Stay Duration Permanent

Provider Details

SDA Provider: ACARES SIL Provider: Claro Aged Care Disability Services

What's nearby

Local terrain 2km to the nearest park at Gammage Park, Gammage Boulevard, Epping VIC, Australia.
Transport 5km to the nearest train station at Epping Station, Epping VIC, Australia.
910m to the nearest bus stop at Eaststone Ave/Edgars Rd, Wollert VIC, Australia.
Shopping 1km to the nearest shopping centre at Aurora Village, Harvest Home Road, Epping VIC, Australia.
Other 4km to the nearest hospital at The Northern Hospital, Cooper Street, Epping VIC, Australia.
3km to the nearest medical practice (GP) at Epping North Medical Centre, Lyndarum Drive, Epping VIC, Australia.

Area Map

Interested in this property?
Here are your options

Ready to apply? Share your details with the provider

Need more detail? Ask the property provider a question

Register to favourite