Skip to content

Content

Contemporary SDA Housing in Wollert – Modern Shared Home with Private Ensuites

Wollert VIC 3750

3 bed

2 bath

2 parking
spaces

Step into comfort and independence with this beautifully designed Specialist Disability Accommodation in Wollert. Built to the High Physical Support SDA Design Standard, this stylish shared home combines functionality with a warm, modern feel — ideal for residents who value both community living and personal space.

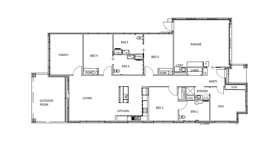
The home accommodates three residents, each with their own private, accessible ensuite for comfort and privacy. A fourth bedroom is allocated for Onsite Overnight Assistance (OOA) staff, ensuring 24/7 support is available when needed. The layout features wide hallways, step-free access, and open-plan living areas designed for ease of movement and accessibility.

Inside, the open kitchen and dining space are perfect for shared meals, while the adjoining lounge offers a cosy setting for connection or quiet relaxation. The property is assistive-technology ready, with provisions for ceiling hoists, emergency power backup, and individual climate control in every room for personalised comfort.

This SDA housing in Wollert is ideally located near local parks, shops, and essential healthcare services, offering both convenience and tranquillity in a growing community. Residents can enjoy a calm suburban lifestyle while remaining connected to transport and nearby amenities.

Claro — awarded the Most Outstanding Disability Support Provider at the 2025 Enablement Awards — has partnered with SDA provider Acares as the onsite care partner for this SDA housing in Wollert. Claro is a registered NDIS provider offering Supported Independent Living (SIL) and Community Participation (CP) supports, helping residents live with greater choice, comfort, and independence.

To be eligible for Specialist Disability Accommodation, you’ll need to be a NDIS participant and have approved SDA funding in your plan. If you’re unsure, speak with your NDIS coordinator or contact Claro via intake@claro.com.au or the form on this page.

Interested in this property?
Here are your options

Ready to apply? Share your details with the provider

Need more detail? Ask the property provider a question

Register to favourite

Property Features

The building
Single storey
Access
Wide doorframes Wide pathways
Environment
Air conditioning Heating
Outside
Secure backyard Garden
Shared Living
Window Built-in robe Private/ensuite bathroom Shared living space Shared kitchen Shared laundry
Registered SDA: No
Stay Duration Permanent

Provider Details

What's nearby

Local terrain 2km to the nearest park at Gammage Park, Gammage Boulevard, Epping VIC, Australia.
Transport 5km to the nearest train station at Epping Station, Epping VIC, Australia.
910m to the nearest bus stop at Eaststone Ave/Edgars Rd, Wollert VIC, Australia.
Shopping 1km to the nearest shopping centre at Aurora Village, Harvest Home Road, Epping VIC, Australia.
Other 4km to the nearest hospital at The Northern Hospital, Cooper Street, Epping VIC, Australia.
3km to the nearest medical practice (GP) at Epping North Medical Centre, Lyndarum Drive, Epping VIC, Australia.

Area Map

Interested in this property?
Here are your options

Ready to apply? Share your details with the provider

Need more detail? Ask the property provider a question

Register to favourite