Skip to content

Content

Contemporary SDA Housing in Lyndhurst – Accessible Shared Home with 24/7 Support

Lyndhurst VIC 3975

3 bed

3 bath

2 parking
spaces

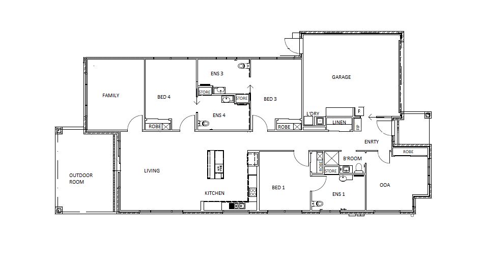
Enjoy comfort, privacy, and connection in this beautifully designed Specialist Disability Accommodation in Lyndhurst. Built to the High Physical Support SDA Design Standard, this modern three-resident home offers independence with the reassurance of 24/7 onsite support.

Each resident has a private bedroom and ensuite, while an additional Onsite Overnight Assistance (OOA) room ensures round-the-clock care when needed. Wide doorways, step-free entry, and wheelchair-friendly layouts make moving around simple and safe. Shared spaces include a bright open-plan kitchen, dining, and living area that opens to an accessible outdoor space — ideal for relaxing or connecting with housemates.

This SDA housing in Lyndhurst is assistive-technology ready, with ceiling hoist provisions and emergency power backup for added peace of mind. Individually controlled heating and cooling in each room provide year-round comfort, while the modern kitchen and fittings make daily routines easier and more enjoyable.

Located close to shops, medical centres, and public transport, this home combines accessibility with convenience.

Claro — awarded the Most Outstanding Disability Support Provider at the 2025 Enablement Awards — has partnered with SDA provider Acares as the onsite care partner. Claro is a registered NDIS provider offering Supported Independent Living (SIL) and Community Participation (CP) supports, helping residents live confidently and independently.

To be eligible for Specialist Disability Accommodation, you’ll need to be a NDIS participant and have approved SDA funding in your plan. If you’re unsure, speak with your NDIS coordinator or contact Claro via intake@claro.com.au or the form on this page.

Interested in this property?
Here are your options

Ready to apply? Share your details with the provider

Need more detail? Ask the property provider a question

Register to favourite

Property Features

The building
Single storey
Access
Wide doorframes Wide pathways
Environment
Air conditioning Heating
Shared Living
Window Built-in robe Private/ensuite bathroom Shared living space Shared kitchen Shared laundry
Registered SDA: No
Stay Duration Permanent

Provider Details

What's nearby

Transport 2km to the nearest train station at Merinda Park Station, Thompsons Rd, Cranbourne North VIC, Australia.
561m to the nearest bus stop at Lyndhurst Boulevard, Lyndhurst VIC, Australia.
Shopping 925m to the nearest shopping centre at Marriott Waters Shopping Centre, Marriott Boulevard, Lyndhurst VIC, Australia.
Other 9km to the nearest hospital at Monash Health - Casey Hospital, Kangan Drive, Berwick VIC, Australia.
910m to the nearest medical practice (GP) at Marriott Waters Medical Centre, Society Avenue, Lyndhurst VIC, Australia.

Area Map

Interested in this property?
Here are your options

Ready to apply? Share your details with the provider

Need more detail? Ask the property provider a question

Register to favourite