Skip to content

Content

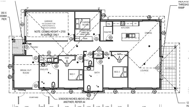
Ripley, QLD - Robust House

Ripley QLD 4306

3 bed

3 bath

1 parking
space

1 x BEDROOM AVAILABLE NOW!

We have one vacancy available now in a Robust house located in Ripley, Ipswich – QLD.

This is a shared accommodation with an already established 51-year-old male tenant looking to reside with one other male participant of similar age.

This house has been perfectly constructed under the NDIS Specialist Disability Accommodation (SDA) guidelines up to Robust Level, however applications will be considered from NDIS participants with approved SDA funding outside this design level. Contact our team today to discuss your options.

Property Features:

* 3 large bedrooms (1 room available for 1 SDA approved participant)

* Dedicated room for supports (OOA)

* 2 bathrooms

* Powder room

* Open plan kitchen, living & dining areas

* Breakout room

* Spacious alfresco area

* Single car garage perfect for storage

* Close to Shops and public transport.

Contact us today on 1300 418 819 / info@disabilityhousingsolutions.com.au to learn more, or to apply for this amazing property.

Interested in this property?
Here are your options

Ready to apply? Share your details with the provider

Need more detail? Ask the property provider a question

Register to favourite

Property Features

The building
Single storey
Environment
Air conditioning Heating
Outside
Secure backyard Outdoor living/entertainment area Undercover access from parking to property
Shared Living
Storage for personal equipment Window Built-in robe Direct access to yard / courtyard / garden Private/ensuite bathroom Shared living space Shared kitchen Shared laundry
Registered SDA: Yes
SDA Category: Robust
Stay Duration Permanent
Medium term

Provider Details

SDA Provider: Disability Housing Solutions SIL Provider: Disability Connection Services

What's nearby

Local terrain Park: Faye Carr Park 3.6km / 5 mins by car
Transport Public Transport: Bus Stop 2.3km / 4 mins by car
Shopping Close Shopping Centre: Ripley Shopping Centre 1.9km / 5 mins by car
Other Closest Hospital: Ipswich Hospital. 11.8km / 16 mins by car

Area Map

Interested in this property?
Here are your options

Ready to apply? Share your details with the provider

Need more detail? Ask the property provider a question

Register to favourite