Secure backyardDeck/verandahOutdoor living/entertainment areaUndercover access from parking to property
Shared Living
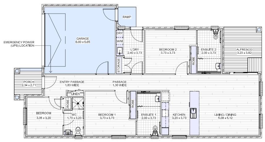
Storage for personal equipmentWindowBuilt-in robeDirect access to yard / courtyard / gardenPrivate/ensuite bathroomShared living spaceShared kitchenShared laundry
Registered SDA:Yes
SDA Category:
High Physical Support
Stay Duration
Permanent
What's nearby
Transport10 minutes to the Rockbank station
Shopping13 minutes to Coles Woodlea
Interested in this property? Here are your options
Ready to apply? Share your details with the provider
Need more detail? Ask the property provider a question
Our match score indicates how closely 'matched' you are to this property. The longer the line; the better you are matched with the property with regards to your preferences and funding.
Our match score indicates how closely 'matched' this applicant is to your property. The longer the line; the better they are matched with regards to their preferences and funding.
14 properties added in the last 24 hours.
Login to find your Nest
Reset your password
Sign up for Nest in seconds
Why are you signing up?
Register to apply for:Move in Ready HPS House in Deanside, Deanside VIC 3336
When you click 'Register & Apply', your profile details will be shared with the accommodation provider. They'll assess how suited you are to the room and contact you to discuss your application.
Your application has been submitted.
The accommodation provider will be in touch to let you know the outcome of your application.