Skip to content

Content

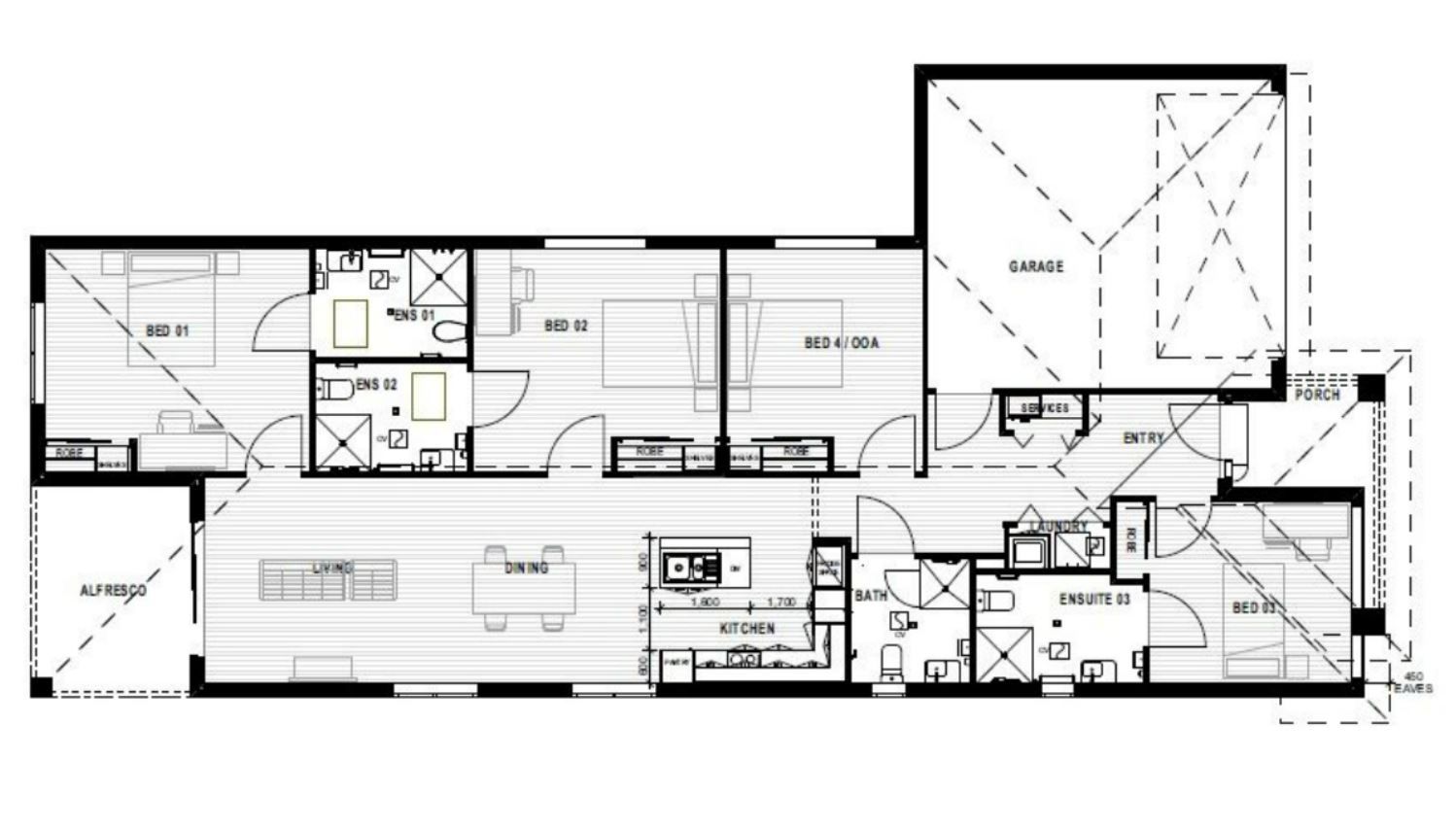
SDA IL or Robust 3 Bedroom House plus OOA Wyndham Vale, Vic | 077

Wyndham Vale VIC 3024

2 bed

4 bath

2 parking
spaces

Step into refined comfort with this purpose-built SDA Robust or Improved Liveability home, nestled in the heart of Wyndham Vale. Offering modern amenities and bespoke features, this property is masterfully designed to cater to the needs of NDIS participants seeking quality, independence, and style.

✨ Property Features:

🛏️Bedrooms: 2 participant bedroom home, each with private ensuites, for personal comfort and ease.

👩‍⚕️OOA room: with built-in robe and separate bathroom adds flexibility.

♿Accessibility: Fully compliant with SDA design standards.

🔥❄️Climate Control: Ducted heating for cozy winters and split system air conditioning for refreshing summers.

🛋 Living Spaces: Spacious open plan kitchen/living area.

🚪 🧺 Storage: Built-in robes in all bedrooms, paired with a European laundry solution for space efficiency.

🌿Outdoor Living: Alfresco area for private relaxation and enjoyment of the outdoors.

🚘Parking: Secure double garage with ample room for vehicles or additional storage.

🐾 Pet-Friendly: Bring your beloved companions into a new home that welcomes pets.

Designed with attention to every detail, this property stands as a testament to sophisticated SDA housing solutions.

📞 To arrange a viewing or for more information, please contact us, we are ready to assist you with your SDA housing requirements. 🏡✨

Interested in this property?
Here are your options

Ready to apply? Share your details with the provider

Need more detail? Ask the property provider a question

Register to favourite

Property Features

The building
Single storey
Access
Ramp access Wide doorframes Wide pathways
Environment
Air conditioning Heating
Outside
Outdoor living/entertainment area
Shared Living
Built-in robe Private/ensuite bathroom Shared living space Shared kitchen Pet friendly
Registered SDA: Yes
SDA Category: Improved Liveability
Robust
Stay Duration Short term

Provider Details

SDA Provider: SDA Consulting

What's nearby

Transport 2.7km from train station
1.6km from bus stop
Shopping 2.0km from shopping centre
Other 10.5km from hospital
2.0km from medical centre

Area Map

Interested in this property?
Here are your options

Ready to apply? Share your details with the provider

Need more detail? Ask the property provider a question

Register to favourite