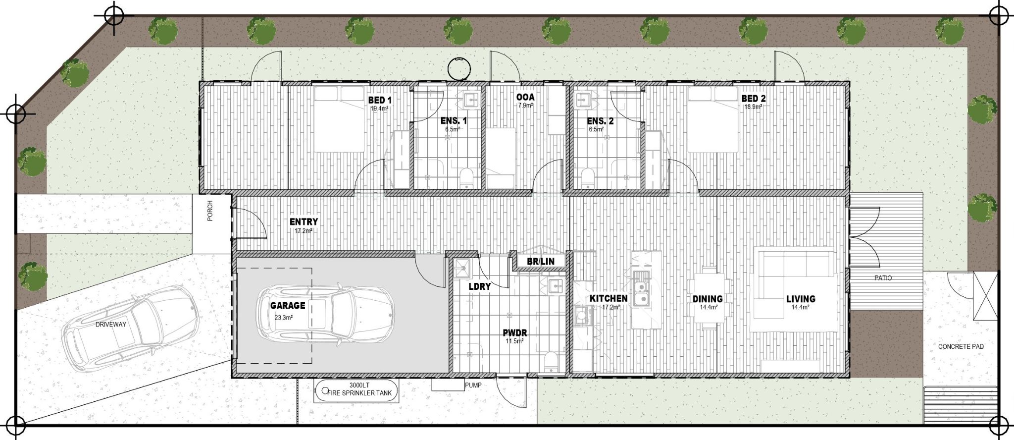
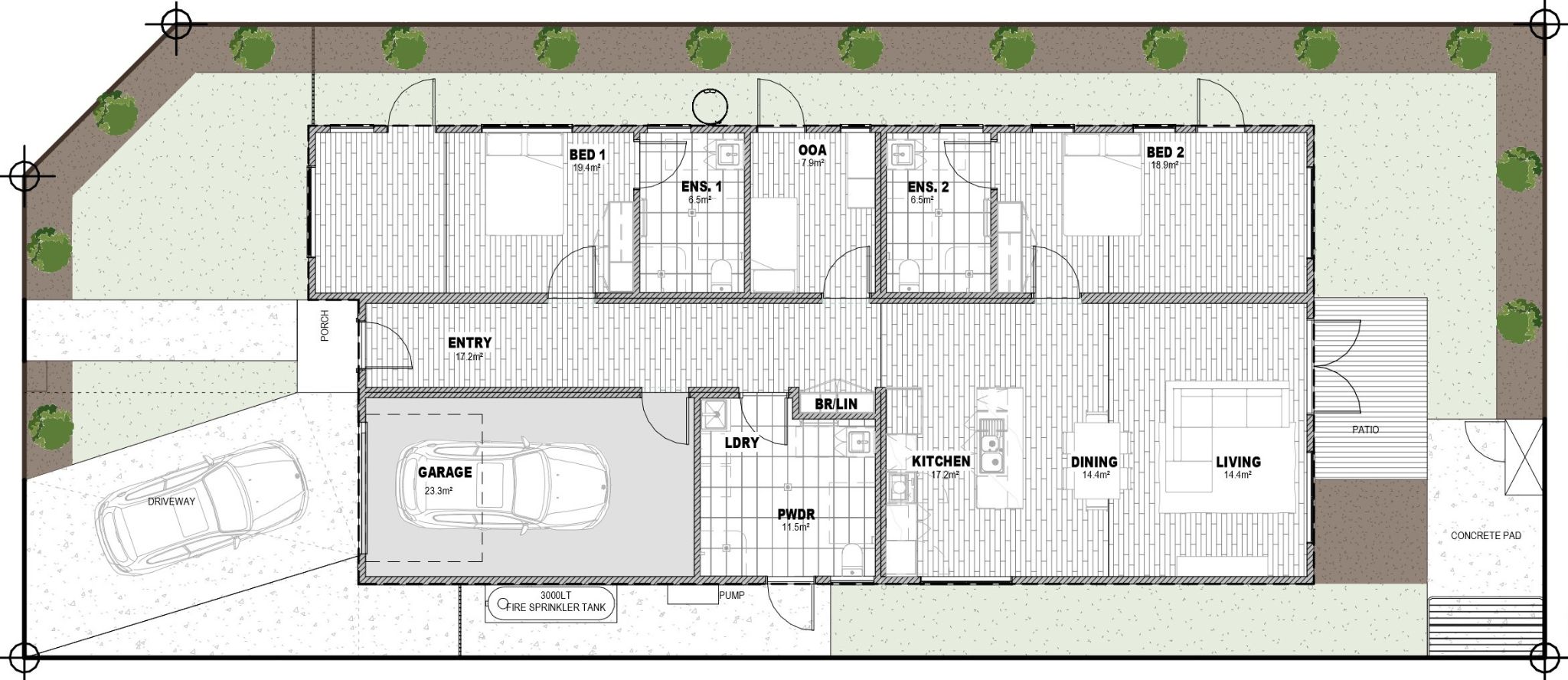
We have one vacancy in a new 2 bedroom + OOA Improved Liveability home built to Robust specification, ensuring participants with funding for either SDA category can reside comfortably. This home is offered with lifetime tenancy and is close to shops, medical facilities, parks and transport.
Interested in this property? Here are your options
Ready to apply? Share your details with the provider
Need more detail? Ask the property provider a question
Secure backyardGardenDeck/verandahOutdoor living/entertainment areaUndercover access from parking to property
Shared Living
Storage for personal equipmentWindowBuilt-in robeDirect access to yard / courtyard / gardenPrivate/ensuite bathroomShared living spaceShared kitchenShared laundryPet friendly
Registered SDA:Yes
SDA Category:
Improved Liveability
Robust
Stay Duration
Permanent
Provider Details
SDA Provider: DEC Housing
SIL Provider:
Hume Support Services
What's nearby
TransportBus 700m; Train 5.5km
ShoppingWellington Square Shopping Centre 2.5km
OtherGP 2.6km Acacia Way Reserve 400m
Interested in this property? Here are your options
Ready to apply? Share your details with the provider
Need more detail? Ask the property provider a question
Our match score indicates how closely 'matched' you are to this property. The longer the line; the better you are matched with the property with regards to your preferences and funding.
Our match score indicates how closely 'matched' this applicant is to your property. The longer the line; the better they are matched with regards to their preferences and funding.
136 properties added this year.
Login to find your Nest
Reset your password
Sign up for Nest in seconds
Why are you signing up?
Register to apply for:Your new Robust or Improved Liveability home!, Wallan VIC 3756
When you click 'Register & Apply', your profile details will be shared with the accommodation provider. They'll assess how suited you are to the room and contact you to discuss your application.
Your application has been submitted.
The accommodation provider will be in touch to let you know the outcome of your application.