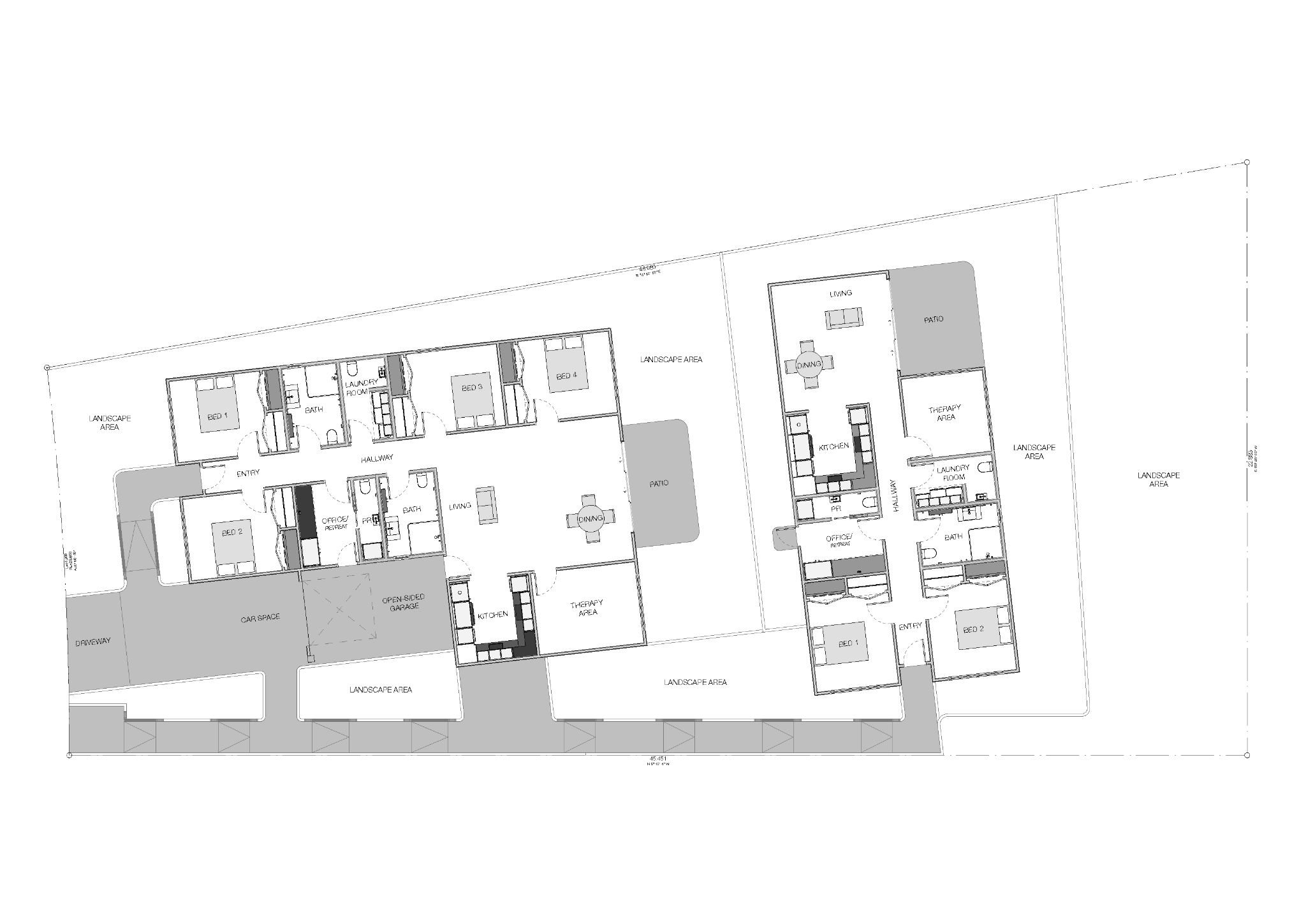
A home to enable. We’re creating a beautiful living environment matched with assistive technology capabilities and innovation in its build. Providing two separate living spaces and Support Worker accommodation and office. This home presents contemporary living at its finest.
Like nothing before, this home has been purposely designed with the residents in mind. Offering functionality, accessibility and durability, making this stylish home live up to rigorous quality and safety standards and provides an ongoing quality living space.
Located in an established community setting, this home brings hand-picked, curated interiors and colour palettes, fixtures and finishes with an emphasis on design coupled with a calm, luxury feel.
This home will serve NDIS Participants with SDA at Improved Liveability or Robust.
Live the life you want.
Interested in this property? Here are your options
Ready to apply? Share your details with the provider
Need more detail? Ask the property provider a question
Air conditioningCompatible to Environmental Control Units (ECU)Heating
Outside
Secure backyardRaised garden bedGardenDeck/verandahOutdoor living/entertainment area
Shared Living
Storage for personal equipmentWindowBuilt-in robeDirect access to yard / courtyard / gardenShared bathroomShared living spaceShared kitchenShared laundry
Participant must be SDA eligible and have SDA in their NDIS Plan in one of the following SDA design categories:
Improved Liveability or Robust
What's nearby
TransportSpring Farm is well serviced with public transport. Campbelltown Station is the closest train station, which is accessible by taking the 893 bus route from Narellan Town Centre to Campbelltown Station via Spring Farm. The S17 bus also goes via Spring Farm and can take you to either Narellan Town Centre or Camden.
ShoppingThe Spring Farm Shopping Centre is conveniently located in the heart of Spring Farm. It is home to Woolworths, a pharmacy, a medical centre, a dentist and other speciality shops. Narellan Town Centre is only a short drive away (4km) and provides you with all the well-known retailers, casual dining and a cinema.
OtherThe area is well serviced with public hospitals including Camden Hospital, Campbelltown Hospital and Northside MacArthur Clinic. Supported by over 50 specialist medical services within 10km, including physiotherapy, speech pathologists and occupational therapists.
Interested in this property? Here are your options
Ready to apply? Share your details with the provider
Need more detail? Ask the property provider a question
Our match score indicates how closely 'matched' you are to this property. The longer the line; the better you are matched with the property with regards to your preferences and funding.
Our match score indicates how closely 'matched' this applicant is to your property. The longer the line; the better they are matched with regards to their preferences and funding.
6768 listed properties Australia-wide.
Login to find your Nest
Reset your password
Sign up for Nest in seconds
Why are you signing up?
Register to apply for:Beautiful 2 Bedroom House in Spring Farm, Spring Farm NSW 2570
When you click 'Register & Apply', your profile details will be shared with the accommodation provider. They'll assess how suited you are to the room and contact you to discuss your application.
Your application has been submitted.
The accommodation provider will be in touch to let you know the outcome of your application.