Skip to content

Content

Captivating Clyde North - 2 participant home with private courtyard!

Clyde North VIC 3978

2 bed

2 bath

1 parking
space

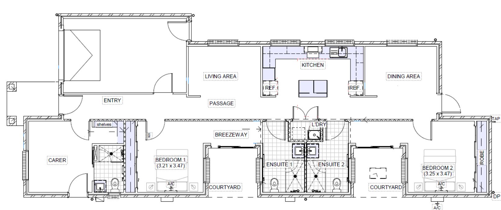
Connected Living Solutions are proud to introduce one of our current properties, a modern 2-participant home located in Clyde North, VIC. This property offers a tailored living solution, designed with accessibility and comfort in mind. Situated in a convenient location, close to essential amenities, this residence presents an ideal opportunity for those seeking specialised accommodation.

Within the property, each resident has their own private bathroom as well as a private courtyard that can be accessed from their own bedroom. The modern living spaces provide the opportunity for communal living, whilst the private courtyards offered to each participant provide a chance for relaxation.

To schedule a viewing of this wonderful property, contact us today!

Interested in this property?
Here are your options

Ready to apply? Share your details with the provider

Need more detail? Ask the property provider a question

Register to favourite

Property Features

The building
Single storey
Environment
Air conditioning Heating
Outside
Secure backyard
Shared Living
Window Built-in robe Direct access to yard / courtyard / garden Private/ensuite bathroom Shared living space Shared kitchen Shared laundry
Registered SDA: Yes
SDA Category: Robust
Stay Duration Permanent

Provider Details

SDA Provider: Connected Living Solutions SIL Provider: Jigsaw Blue

What's nearby

Transport Local Train Station - Cranbourne Station
Shopping Selandra Rise
Other Local Park - Vista Park Bee Playground - 6 minute walk

Area Map

Interested in this property?
Here are your options

Ready to apply? Share your details with the provider

Need more detail? Ask the property provider a question

Register to favourite