Skip to content

Content

Assist and Care Melbourne North Property

Ardeer VIC 3022

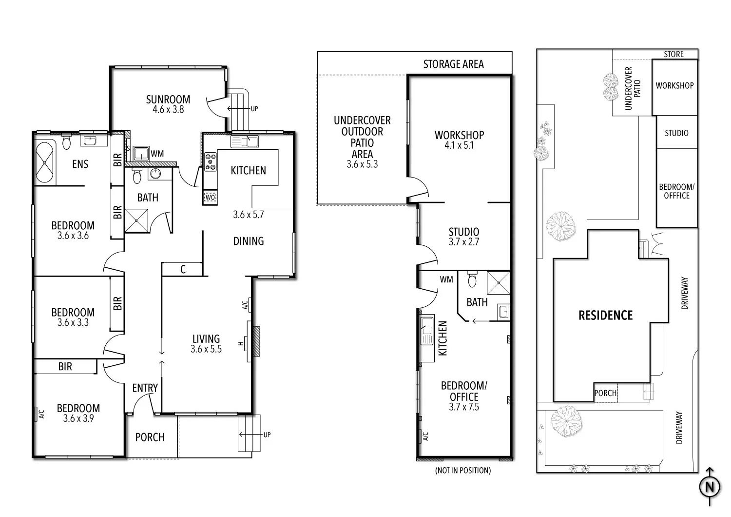
4 bed

2 bath

4 parking
spaces

We are pleased to offer a welcoming home ideally suited for supported independent living in the heart of Ardeer.

This spacious property features 4 comfortable bedrooms, including a fully self-contained flat, providing flexibility for participants seeking enhanced independence or privacy while still benefiting from onsite support.

Property highlights include:

Modern, safe, and accessible living spaces

4 bedrooms (including a private self-contained flat)

Shared common areas designed for comfort and connection

Close to essential amenities and local shops

Excellent transport access – just steps from the bus stop and within easy walking distance of Ardeer Train Station

Quiet residential setting with convenient connections to the wider community

This home is designed to support individuals to live confidently, comfortably, and independently while staying connected to their community.

For enquiries or to organise a viewing, please contact us today.

Interested in this property?
Here are your options

Ready to apply? Share your details with the provider

Need more detail? Ask the property provider a question

Register to favourite

Property Features

The building
Single storey
Access
Stair access Ramp access Wide doorframes Wide pathways
Environment
Air conditioning Compatible to Environmental Control Units (ECU) Heating
Outside
Secure backyard Secure frontyard Raised garden bed Garden Deck/verandah Outdoor living/entertainment area
Shared Living
Storage for personal equipment Window Built-in robe Private/ensuite bathroom Shared bathroom Private living space Shared living space Private kitchen Shared kitchen Private laundry Shared laundry
Registered SDA: No
Stay Duration Permanent
Medium term
Short term

Provider Details

What's nearby

Other sunshine hospital

Area Map

Interested in this property?
Here are your options

Ready to apply? Share your details with the provider

Need more detail? Ask the property provider a question

Register to favourite