Skip to content

Content

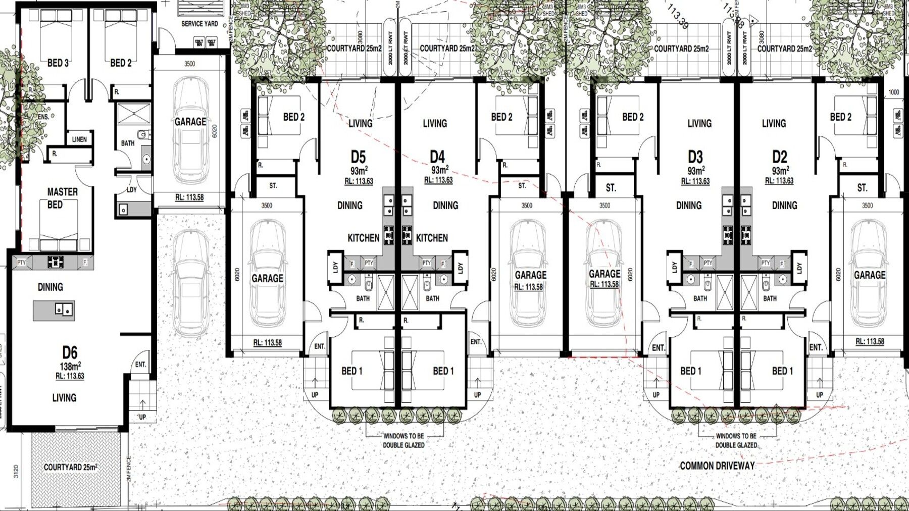
SDA IL 5 x 1 Bedroom Villas plus OOA Shepparton, Vic | 197

Shepparton VIC 3630

1 bed

1 bath

1 parking
space

Step into strength, style, and space! This newly available Viilla is designed to offer secure, accessible living with rock-solid construction. Perfect for individuals with Robust support needs, it combines modern comfort with essential durability in the heart of Shepparton.

🏡 Property Features:

🛏️ 1 Bedroom: A comfortable, cozy bedroom.

🛁 1 Bathroom: Easy-to-use, modern bathroom.

🔑 OOA Room: Yes: A dedicated space for an onsite overnight support person.

🚗 1 Car Garage: Secure garage for your vehicle.

❄️🔥 Heating and Cooling: Stay comfortable all year round.

🐾 Pets Allowed: Pets are welcome!

🌳 Outdoor Area: Enjoy a private outdoor space.

Don't miss the chance to secure this strong, stylish Villa.

Contact us today to arrange a private inspection and make this beautiful Shepparton property your new home!

Interested in this property?
Here are your options

Ready to apply? Share your details with the provider

Need more detail? Ask the property provider a question

Register to favourite

Property Features

The building
Single storey
Access
Wide pathways
Environment
Air conditioning Heating
Outside
Outdoor living/entertainment area
Shared Living
Built-in robe Private/ensuite bathroom Shared living space Shared kitchen Pet friendly
Registered SDA: Yes
SDA Category: Improved Liveability
Stay Duration Permanent

What's nearby

Transport 500m from train station
1.1km from bus stop
Shopping 1.2km from shopping mall
Other 3.6km from hospital
1.3km from medical centre
850m from park

Area Map

Interested in this property?
Here are your options

Ready to apply? Share your details with the provider

Need more detail? Ask the property provider a question

Register to favourite