Skip to content

Content

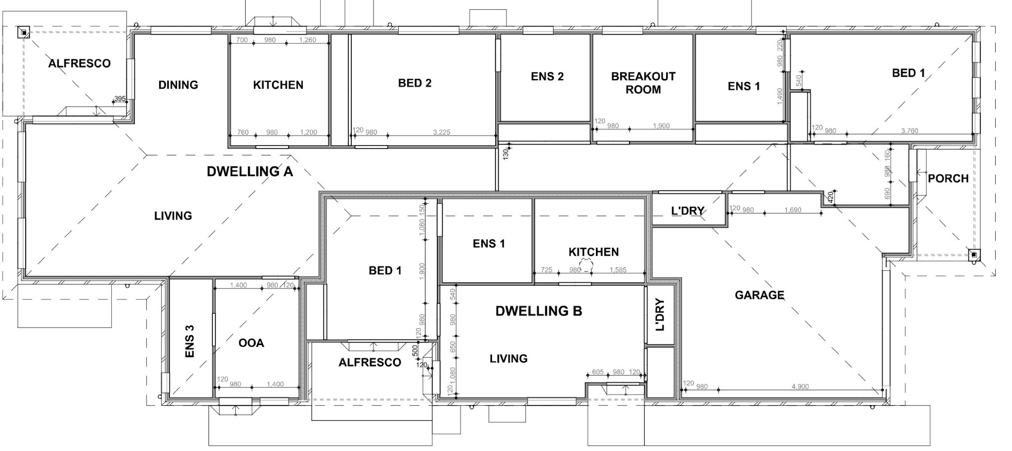
Two Bedroom Robust SDA in the Heart of Toowoomba

Wilsonton QLD 4350

3 bed

3 bath

2 parking
spaces

Located within the peaceful suburb of Wilsonton, Toowoomba, this two bedroom SDA has been specifically designed to accommodate participants with Robust or Improved Livability needs. This duplex home features two bedrooms on one side and single occupancy unit on the other side, each with their own ensuites, as well as an additional break out room and carers room for added security and care provisions.

In an Everhomes House we work with you to ensure that you can prosper without worrying about barriers in your home. Each home has been designed to complement you in achieving your goals and enhancing your autonomy.

Don't miss out on this opportunity – schedule a viewing today!

Interested in this property?
Here are your options

Ready to apply? Share your details with the provider

Need more detail? Ask the property provider a question

Register to favourite

Property Features

The building
Single storey
Access
Ramp access Wide doorframes Wide pathways
Environment
Air conditioning Heating
Outside
Secure backyard Outdoor living/entertainment area Undercover access from parking to property
Shared Living
Storage for personal equipment Window Built-in robe Private/ensuite bathroom Shared bathroom Shared living space Shared kitchen Shared laundry
Registered SDA: Yes
SDA Category: Improved Liveability
Robust
Stay Duration Permanent
Medium term

Provider Details

SDA Provider: Everhomes Pty Ltd

What's nearby

Shopping 2 Minutes to Wyalla Plaza Shopping Centre
Other 1 minute to Greenwattle Street Bus Stop
6 Minutes to St Andrew’s Toowoomba Hospital
5 Minutes to Wilsonton Medical Centre

Area Map

Interested in this property?
Here are your options

Ready to apply? Share your details with the provider

Need more detail? Ask the property provider a question

Register to favourite