Skip to content

Content

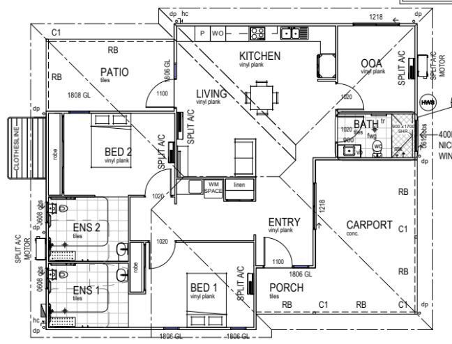
2 HPS + 1 OOA, in Rasmussen

Rasmussen QLD 4815

3 bed

3 bath

2 parking
spaces

Townsville - Fully furnished and Pet friendly

Horizon SDA is here to help you obtain Specialised Disability Accommodation. Our houses are light and airy; open plan and very spacious.

This residence offers a comfortable smart living SDA home with high physical supported ensuite bathrooms, built fully air conditioned, security screens, and wheelchair accessible to all internal and external areas.

Home features you may enjoy:

• Residents can socialise around in the spacious lounge and dining area, or catch up with the other residents at the large kitchen island featuring a low-level bench.

• The kitchen has been designed accessible to allow residents to enjoy participating in meal preparation and cooking.

• With functionality in front of mind, the property offers wide corridors, special bathrooms, and plenty of personal storage.

• Externally the outdoor BBQ entertaining area provides a tranquil area for the residents to enjoy

All of our SDA houses are built to the highest standards, meet SDA certification criteria, and are completely independently 3rd party approved.

Contact Michael Knights on 0409 018 778 / michael@horizonpropertyalliance.com.au or Kylie Peirce on 0493 028 591 / k.peirce@horizonsdacare.com.au. for more information.

Interested in this property?
Here are your options

Ready to apply? Share your details with the provider

Need more detail? Ask the property provider a question

Register to favourite

Property Features

The building
Single storey
Access
Ceiling hoist Wide doorframes Wide pathways
Environment
Air conditioning Heating
Outside
Secure backyard Deck/verandah Outdoor living/entertainment area Undercover access from parking to property
Shared Living
Storage for personal equipment Window Built-in robe Direct access to yard / courtyard / garden Private/ensuite bathroom Shared living space Shared kitchen Shared laundry Pet friendly
Registered SDA: Yes
SDA Category: Improved Liveability
Fully Accessible
High Physical Support
Stay Duration Permanent
Medium term
Short term

Provider Details

SDA Provider: Horizon SDA Care

Area Map

Interested in this property?
Here are your options

Ready to apply? Share your details with the provider

Need more detail? Ask the property provider a question

Register to favourite