Skip to content

Content

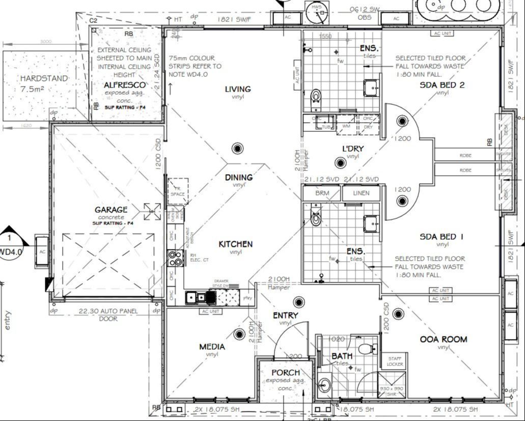
2 SDA + media room + OOA in Newtown

Newtown QLD 4350

3 bed

3 bath

2 parking
spaces

This spacious 3-bedroom house is located in Newtown, QLD, and is designed for two HPS participants, with a OOA bedroom for onsite overnight support.

Fully NDIS certified and compliant to meet the most up to date SDA guidelines.

This home has a modern interior, with the following features:

* 2 large SDA bedrooms, each with an ensuite and SDA accessibility options, split system air conditioning and capacity for ceiling hoists if required.

* OOA bedroom for onsite overnight support

* Spacious open plan living

* Separate Media room

* Modern kitchen with:

- a height-adjustable bench top,

- Caesarstone benchtops,

- strip lighting to the overhead cupboards

- bright lighting, filled with natural light

* Separate laundry, with washer and dryer provided.

Contact Kylie Peirce on 0493 028 591 or email k.peirce@horizonsdacare.com.au

Interested in this property?
Here are your options

Ready to apply? Share your details with the provider

Need more detail? Ask the property provider a question

Register to favourite

Property Features

The building
Single storey
Access
Ceiling hoist Wide doorframes Wide pathways
Environment
Air conditioning
Outside
Secure backyard Outdoor living/entertainment area
Shared Living
Window Built-in robe Private/ensuite bathroom Shared living space Shared kitchen Shared laundry Pet friendly
Registered SDA: No
Stay Duration Permanent
Medium term
Short term

Area Map

Interested in this property?
Here are your options

Ready to apply? Share your details with the provider

Need more detail? Ask the property provider a question

Register to favourite