Skip to content

Content

Danny Met Sally SIL Home Curtin, ACT

Curtin ACT 2605

4 bed

2 bath

1 parking
space

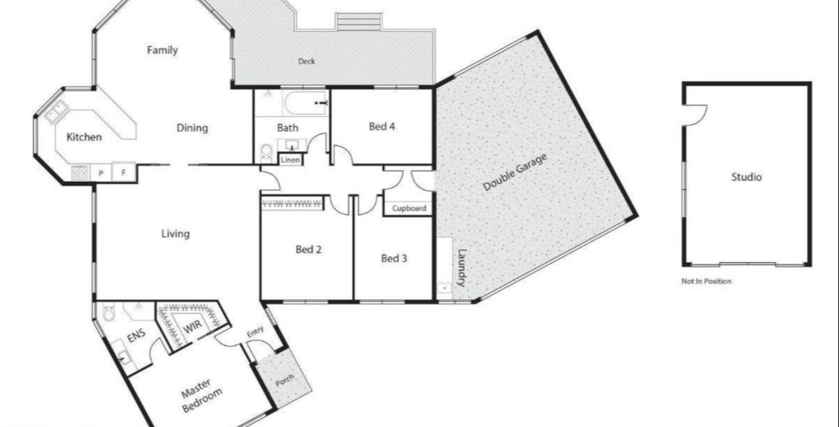
The single level SIL home offers polished hardwood spotted gum floors throughout the SIL home and including the formal lounge.

The spacious open plan kitchen is sundrenched and the perfect area for preparing meals. Flowing out through sliding doors is an elevated North facing deck, which is ideal for those who love to sit outside.

Accommodation includes four generous sized bedrooms, separate master with renovated heated floor ensuite and walk in robe. The three additional bedrooms all features built in robes and are serviced by the main bathroom.

The original double garage has been converted into a sensory room or retreat. Our SIL home is located with a short stroll to Curtin shops and only a short drive away to Woden, Canberra City, Parliamentary Triangle and Canberra Hospital.

As for the support provided, our dedicated team has received training in fire safety, and food handling. This ensures that residents receive the necessary support and assistance in managing their unique healthcare needs. We understand the importance of personalized care and strive to create an environment that promotes well-being and independence.

This property is perfect for individuals with neurodevelopmental diagnosis, offering a safe and nurturing environment tailored to their requirements. We invite you to experience the comfort and support that our cozy SIL home in Epping has to offer.

Interested in this property?
Here are your options

Ready to apply? Share your details with the provider

Need more detail? Ask the property provider a question

Register to favourite

Property Features

The building
Single storey
Environment
Air conditioning Compatible to Environmental Control Units (ECU) Heating
Outside
Secure backyard Garden Deck/verandah Outdoor living/entertainment area
Shared Living
Storage for personal equipment Window Built-in robe Shared bathroom Shared living space Shared kitchen Shared laundry
Registered SDA: No
Stay Duration Permanent
Medium term

Provider Details

SIL Provider: Danny Met Sally

Area Map

Interested in this property?
Here are your options

Ready to apply? Share your details with the provider

Need more detail? Ask the property provider a question

Register to favourite